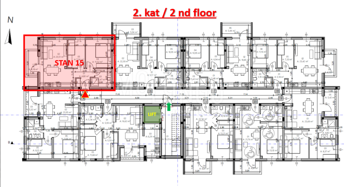
ISTRA, PULA - Novogradnja, stan 15 – 2. kat, 54,95 m² ISTRA, PULA - Novogradnja, stan 15 – 2. kat, 54,95 m²

177.000 €

Vybavení
  • 54 m2
  • 3
  • 1
Lokalita

PULA

Popis
PULA – MONVIDAL | NOVOSTAVBA | BYT 15 – 2. PODLAŽÍ | 54,95 m²

Nabízíme byt č. 15 v novém rezidenčním projektu v části Monvidal ve městě Pula, budova B, 2. podlaží moderního bytového domu s výtahem.

ZÁKLADNÍ INFORMACE:

podlaží: 2. podlaží
celková plocha: 54,95 m²
orientace: severozápad

počet ložnic: 2

koupelna / WC: 1

plánované nastěhování: říjen 2027

Byt má funkční a promyšlenou dispozici s dostatkem denního světla.

VYBAVENÍ A STANDARD:

prodej na klíč

podlahové vytápění v koupelně

klimatizace v ostatních místnostech

kvalitní zateplení – vysoký energetický standard

italská keramika a laminátové podlahy první třídy

bezpečnostní vstupní dveře

PVC okna německého výrobce s dvojsklem

DALŠÍ VÝHODY:

výtah

možnost garážového nebo venkovního parkovacího stání

upravené zelené plochy

výborná lokalita – blízkost veškeré občanské vybavenosti

Vhodné pro bydlení i jako investice.
Přehled
  • Typ nemovitosti: Byt
  • Plocha: 54 m2
  • Plocha pozemku: / m2
  • Pokoje: 3 pokoje
  • Koupelny: 1 pokoje
  • Parkovací místa: /
  • Parkovací místo: /
  • Garáž: 1
  • Podlaží: 2
  • Výhled z nemovitosti: /
  • Energetická třída: /
  • Počet zobrazení: /
Detaily nemovitosti
Typ nemovitosti
Byt
Plocha
54 m2
Plocha pozemku
/ m2
Pokoje
3 pokoje
Koupelny
1 pokoje
Parkovací místa
/
Parkovací místo
/
Garáž
1
Podlaží
2
Výhled z nemovitosti
/
Energetická třída
/
Počet zobrazení
/
Zobrazení na mapě
  • Město
    PULA
  • Region
    ISTARSKA
Informace o kanceláři
Molo Longo
Kontaktovat prodejce
+
=