Byt na prodej, novostavba, první patro, Brodarica – Šibenik Byt na prodej, novostavba, první patro, Brodarica – Šibenik

260.000 €

Vybavení
  • 79 m2
  • 3
  • 1
Lokalita

BRODARICA , ŠIBENIK

Popis
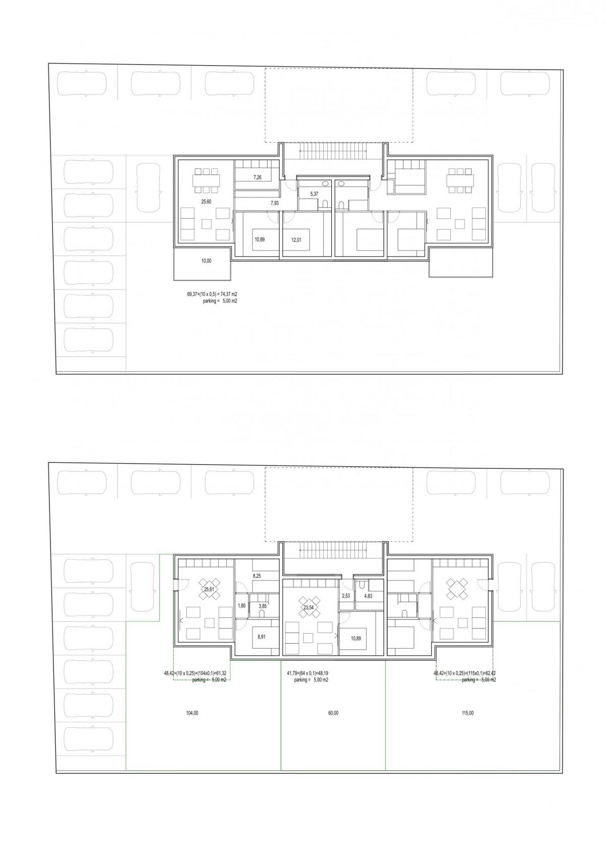
K prodeji je byt v prvním patře menší obytné budovy v Brodarici u Šibeniku, v klidné lokalitě přibližně 450 m od moře.

Byt je velmi dobře dispozičně řešený a maximálně funkční: vstup vede do obytného prostoru s kuchyní a jídelnou a vstupem na terasu, zatímco oddělená noční část se skládá ze dvou ložnic a koupelny. Vnitřní obytná plocha činí 69,37 m², krytá terasa má 10 m². K bytu náleží také dvě venkovní parkovací místa.

Budova má moderní design s plochou střechou, prostornými lodžiemi a čistými, současnými liniemi. Je zasazena do zeleně a navržena jako klidný obytný celek. Venkovní prostor je uspořádán s vyznačenými parkovacími místy, přičemž důraz je kladen na soukromí bytů a kvalitní dojem novostavby.

Brodarica patří mezi nejžádanější příměstské oblasti Šibeniku, je známá blízkostí moře, pláží a promenád a zároveň nabízí rychlé a snadné spojení do Šibeniku a ke všem městským službám. Lokalita je ideální pro klidné celoroční bydlení i jako výborná investice pro rekreaci nebo turistický pronájem.
Přehled
  • Typ nemovitosti: Byt
  • Plocha: 79 m2
  • Plocha pozemku: / m2
  • Pokoje: 3 pokoje
  • Koupelny: 1 pokoje
  • Parkovací místa: /
  • Parkovací místo: /
  • Garáž: /
  • Podlaží: 1
  • Výhled z nemovitosti: /
  • Energetická třída: /
  • Počet zobrazení: /
Detaily nemovitosti
Typ nemovitosti
Byt
Plocha
79 m2
Plocha pozemku
/ m2
Pokoje
3 pokoje
Koupelny
1 pokoje
Parkovací místa
/
Parkovací místo
/
Garáž
/
Podlaží
1
Výhled z nemovitosti
/
Energetická třída
/
Počet zobrazení
/
Zobrazení na mapě
  • Část obce
    ŠIBENIK
  • Město
    BRODARICA
  • Region
    ŠIBENSKO-KNINSKA
Informace o kanceláři
Bonum nekretnine d.o.o.
Kontaktovat prodejce
Bonum nekretnine d.o.o.
Tomislav Drežnjak
+
=