Istrijský kamenný dům Istrijský kamenný dům

185.000 €

Vybavení
  • 82 m2
  • 3
  • 2
Lokalita

TINJAN

Popis
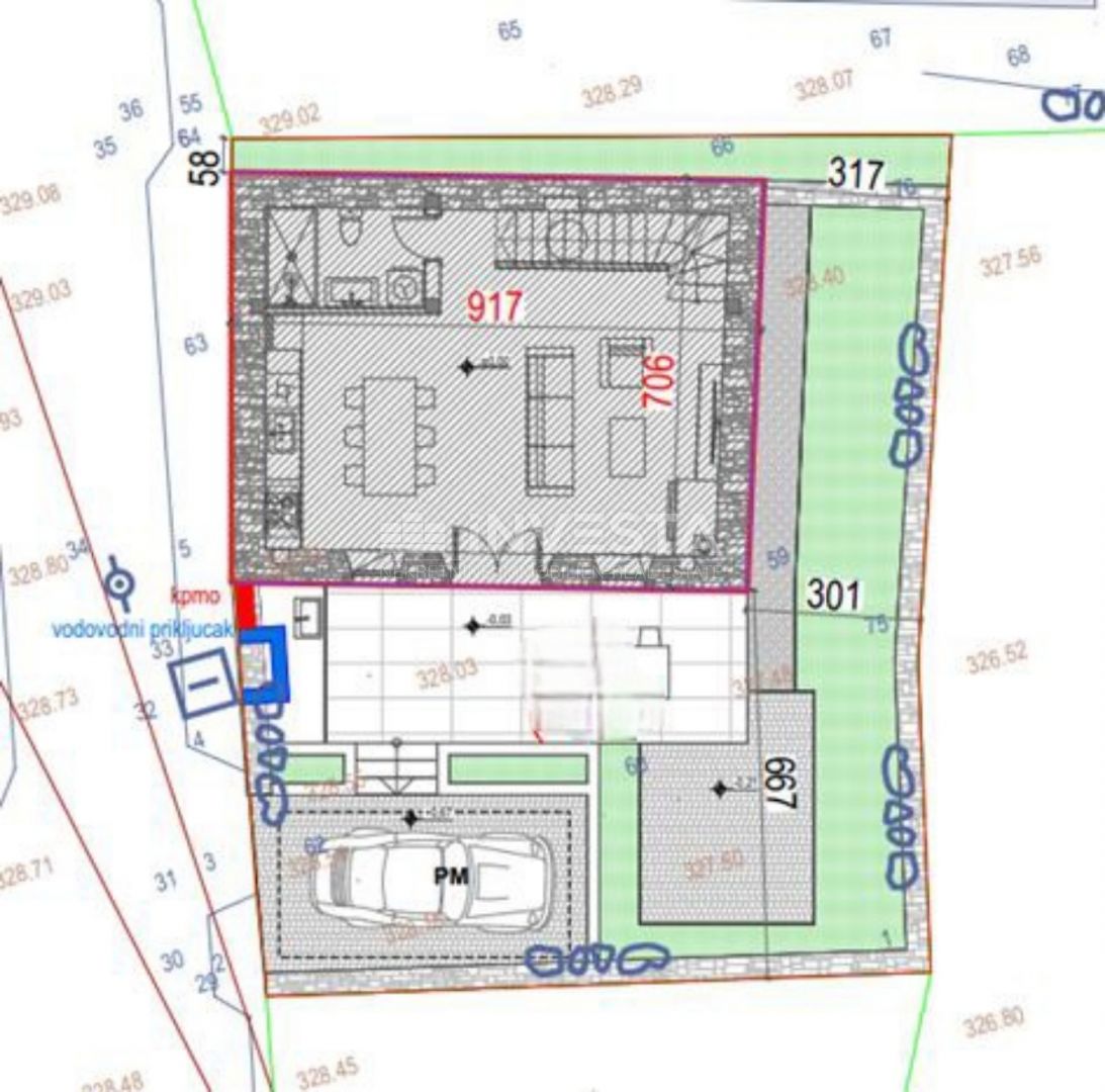
Na prodej: Samostatný autentický istrijský kamenný dům – 82 m², Pozemek 173 m²

K prodeji je kouzelný samostatný autentický istrijský kamenný dům o rozloze 82 m², umístěný na pozemku 173 m². Nemovitost je ve fázi renovace, kterou zahájili současní majitelé, a prodává se v aktuálním stavu.

Hlavní provedené práce:

Železobetonová podlahová deska

ŽB mezipodlažní konstrukce

Zcela nová dřevěná střešní konstrukce s izolací a střechou z středomořské krytiny

První fáze instalace vody a elektřiny byla provedena. Nemovitost má připojení vody a elektřiny a bylo vydáno právoplatné stavební povolení, což umožňuje okamžité pokračování prací.

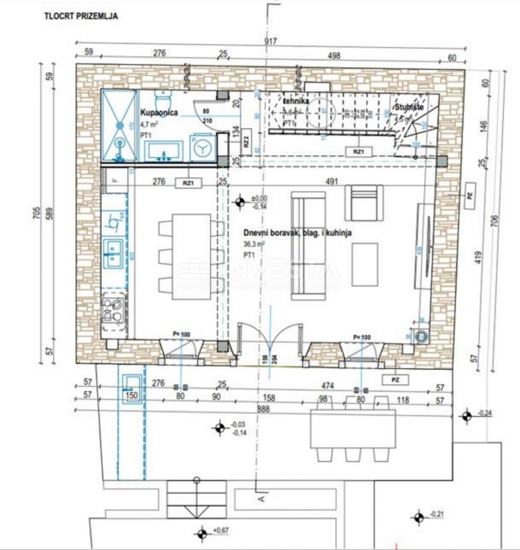
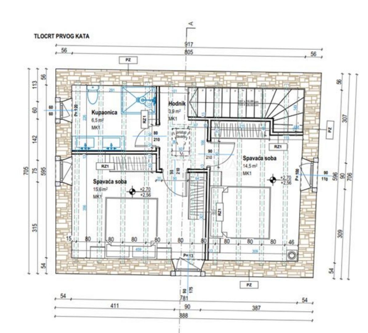
Dispozice domu:

Přízemí: kuchyně s jídelnou, obývací pokoj, koupelna

Patro: dvě ložnice, koupelna

Na pozemku je zajištěno jedno parkovací místo.

Tato nemovitost je vynikající příležitostí pro ty, kteří hledají rekreační dům, stejně jako pro mladou rodinu, která chce žít v klidném a autentickém prostředí. Lokalita je velmi praktická – centrum města je jen dvě minuty autem nebo deset minut pěšky, s veškerou potřebnou občanskou vybaveností.

Nemovitost, kterou rozhodně stojí za to navštívit!
Přehled
  • Typ nemovitosti: Dům
  • Plocha: 82 m2
  • Plocha pozemku: 109 m2
  • Pokoje: 3 pokoje
  • Koupelny: 2 pokoje
  • Parkovací místa: /
  • Parkovací místo: 1
  • Garáž: /
  • Podlaží: /
  • Výhled z nemovitosti: /
  • Energetická třída: /
  • Počet zobrazení: /
Detaily nemovitosti
Typ nemovitosti
Dům
Plocha
82 m2
Plocha pozemku
109 m2
Pokoje
3 pokoje
Koupelny
2 pokoje
Parkovací místa
/
Parkovací místo
1
Garáž
/
Podlaží
/
Výhled z nemovitosti
/
Energetická třída
/
Počet zobrazení
/
Zobrazení na mapě
  • Město
    TINJAN
  • Region
    ISTARSKA
Informace o kanceláři
INVESTA Real Estate
Kontaktovat prodejce
INVESTA Real Estate
Aleksandar Bruić
+
=

Podobné nemovitosti