ISTRIE, UMAG - Ekologická vila s výhledem na moře ISTRIE, UMAG - Ekologická vila s výhledem na moře

759.000 €

Vybavení
  • 126 m2
  • 3
  • 3
Lokalita

UMAG

Popis
ISTRIE, UMAG - Ekologická vila s výhledem na moře

Nabízíme k prodeji moderní vila v klidném zeleném prostředí nedaleko Umagu. Lokalita je vhodná pro kupující, kteří hledají soukromí, kvalitní výstavbu a blízkost moře. Letiště Pula je vzdálené 45 minut, Terst 60 minut a Benátky a Treviso méně než dvě hodiny jízdy. Pláže jsou vzdálené asi 1500 metrů a v blízkosti se nachází Parenzana, vinařství, olivové háje, restaurace, wellness a golfové centrum.

Vila má celkovou plochu 474 metrů čtverečních, z čehož 202 metrů čtverečních je pod střechou. Vnitřní obytná plocha je 105 metrů čtverečních a další prostory zahrnují 65 metrů čtverečních krytých teras, 16 metrů čtverečních krytého balkonu a 16 metrů čtverečních úschovny kol. Exteriér tvoří soukromá zahrada o rozloze 208 metrů čtverečních, vstupní zahrada o rozloze 16 metrů čtverečních, soukromý bazén o rozloze 22 metrů čtverečních a dvě parkovací místa o rozloze 26 metrů čtverečních. Vila má také výhled na moře.

Konstrukce byla vyrobena z masivního dřeva iQwood, což je systém, který zajišťuje energetickou účinnost, stabilitu, regulaci vlhkosti a příjemné mikroklima po celý rok. Tato ekologická stavba je obzvláště ceněna mezi evropskými kupujícími díky své udržitelnosti a dlouhodobé hodnotě.

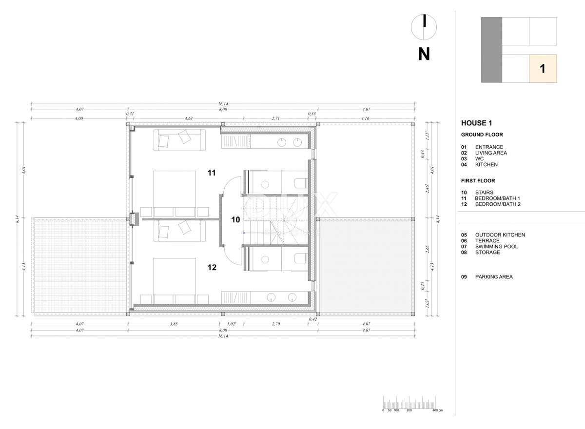
Přízemí se skládá z otevřeného obývacího pokoje s velkými prosklenými stěnami vedoucími na terasu, kuchyně propojené s jídelnou, šatní skříně a toalety pro hosty. Koncept je světlý, funkční a dobře propojený s exteriérem.

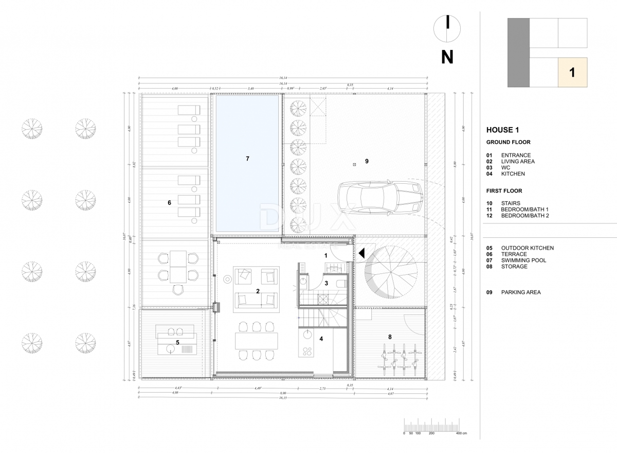
V nádvoří se nachází soukromý bazén, krytá terasa a krytá venkovní kuchyně, která umožňuje využití prostoru po celou sezónu. Soukromá zahrada poskytuje klid a diskrétnost a úschovna kol je užitečná díky blízkosti četných cyklistických stezek.

V patře se nacházejí dvě ložnice, obě s vlastní koupelnou. Podlahové vytápění, klimatizace, elektrické žaluzie a velké prosklené stěny zvyšují úroveň komfortu. Jeden z pokojů má přístup na krytý balkon s výhledem na zeleň a moře.

Vila je vhodná jako rodinný dům, druhý domov u moře nebo investice do luxusního turistického pronájmu. Soukromý bazén, zahrada a vysoce kvalitní konstrukce ji odlišují od trhu a činí z ní bezpečnou dlouhodobou koupi.

Pro další informace, půdorysy, vizualizace a domluvení prohlídky nás prosím kontaktujte. Takové nemovitosti se obvykle rychle prodávají, proto doporučujeme včasné ověření dostupnosti.

Vážení klienti, provize realitní kanceláře je účtována v souladu se Všeobecnými obchodními podmínkami:
www.dux-nekretnine.hr/opci-uvjeti-poslování
Přehled
  • Typ nemovitosti: Dům
  • Plocha: 126 m2
  • Plocha pozemku: 474 m2
  • Pokoje: 3 pokoje
  • Koupelny: 3 pokoje
  • Parkovací místa: /
  • Parkovací místo: /
  • Garáž: /
  • Podlaží: /
  • Výhled z nemovitosti: na moře
  • Energetická třída: 1
  • Počet zobrazení: /
Detaily nemovitosti
Typ nemovitosti
Dům
Plocha
126 m2
Plocha pozemku
474 m2
Pokoje
3 pokoje
Koupelny
3 pokoje
Parkovací místa
/
Parkovací místo
/
Garáž
/
Podlaží
/
Výhled z nemovitosti
na moře
Energetická třída
1
Počet zobrazení
/
Zobrazení na mapě
  • Město
    UMAG
  • Region
    ISTARSKA
Informace o kanceláři
DUX Nekretnine
Kontaktovat prodejce
DUX Nekretnine
Tony Jerković
+
=