ISTRIE, UMAG - Ekologická vila u moře ISTRIE, UMAG - Ekologická vila u moře

699.000 €

Vybavení
  • 126 m2
  • 3
  • 3
Lokalita

UMAG

Popis
ISTRIE, UMAG - Ekologická vila u moře

Prodává se moderní vila nacházející se v klidném zeleném prostředí nedaleko Umagu, vhodná pro kupující, kteří hledají soukromí, kvalitní ekologickou výstavbu a blízkost moře. Letiště Pula je vzdálené 45 minut, Terst 60 minut a Benátky a Treviso méně než dvě hodiny jízdy. Pláže jsou vzdálené přibližně 1500 metrů a Parenzana, vinařství, olivové háje, restaurace, wellness a golfové centrum jsou snadno dostupné.

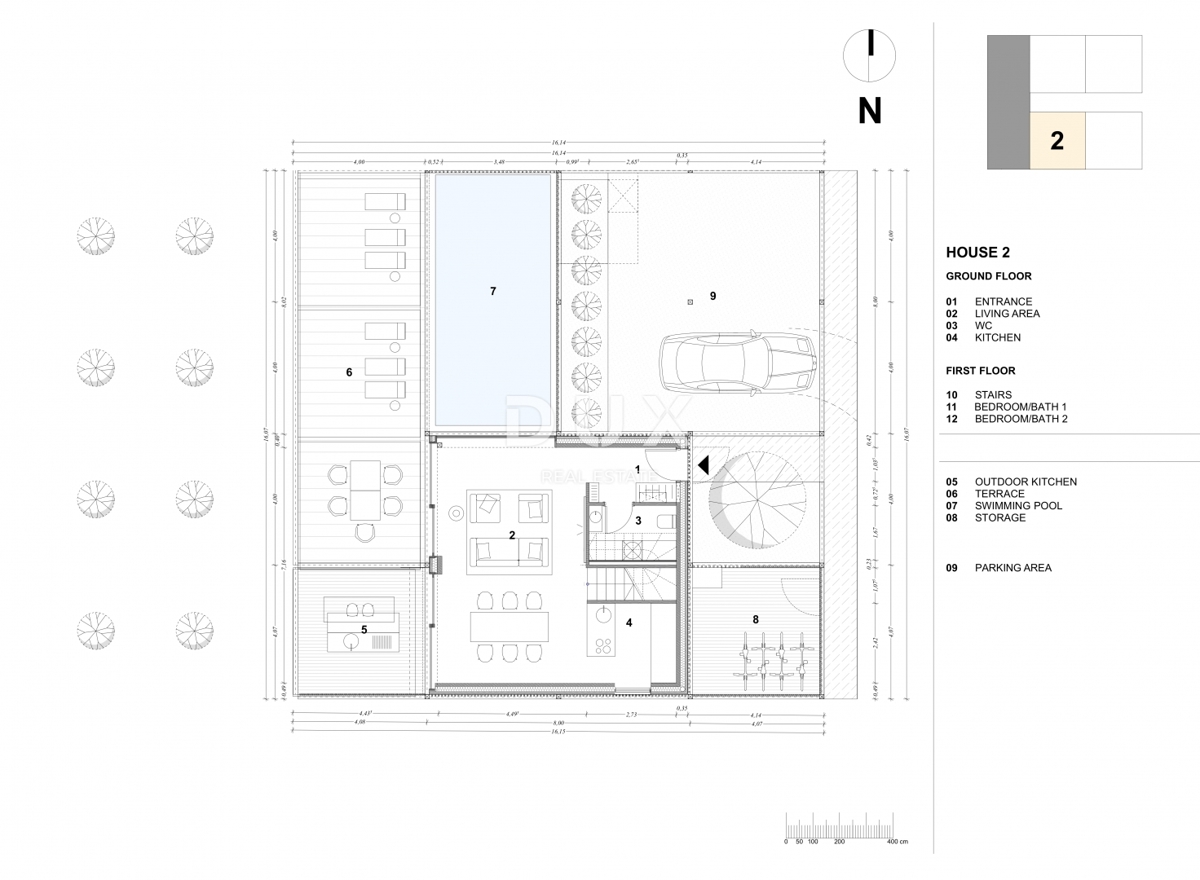
Vila má celkovou plochu 472 metrů čtverečních, z čehož 202 metrů čtverečních je pod střechou. Vnitřní obytná plocha je 105 metrů čtverečních a další prostory zahrnují 65 metrů čtverečních krytých teras, 16 metrů čtverečních krytého balkonu a 16 metrů čtverečních úschovny kol. Venkovní prostor se skládá ze soukromé zahrady o rozloze 206 metrů čtverečních, vstupní zahrady o rozloze 16 metrů čtverečních, soukromého bazénu o rozloze 22 metrů čtverečních a dvou parkovacích míst o celkové ploše 26 metrů čtverečních.

Konstrukce je vyrobena z masivního dřeva iQwood, systému, který poskytuje stabilní konstrukční vlastnosti, energetickou účinnost, regulaci vlhkosti a příjemné mikroklima po celý rok. Tato ekologická konstrukce je na evropském trhu stále žádanější právě díky své udržitelnosti, nižším režijním nákladům a dlouhodobé hodnotě.

Přízemí vily tvoří otevřený obývací pokoj s velkými prosklenými stěnami a přímým vstupem na terasu, kuchyň propojená s jídelnou, šatna a toaleta pro hosty. Prostor je funkčně řešen, s vynikajícím přirozeným světlem a přímým propojením s exteriérem.

V nádvoří se nachází soukromý bazén, krytá terasa a krytá venkovní kuchyně, která umožňuje využití prostoru během teplejších měsíců. Soukromá zahrada nabízí klid a diskrétnost, zatímco úschovna kol umožňuje praktické uložení rekreačního vybavení.

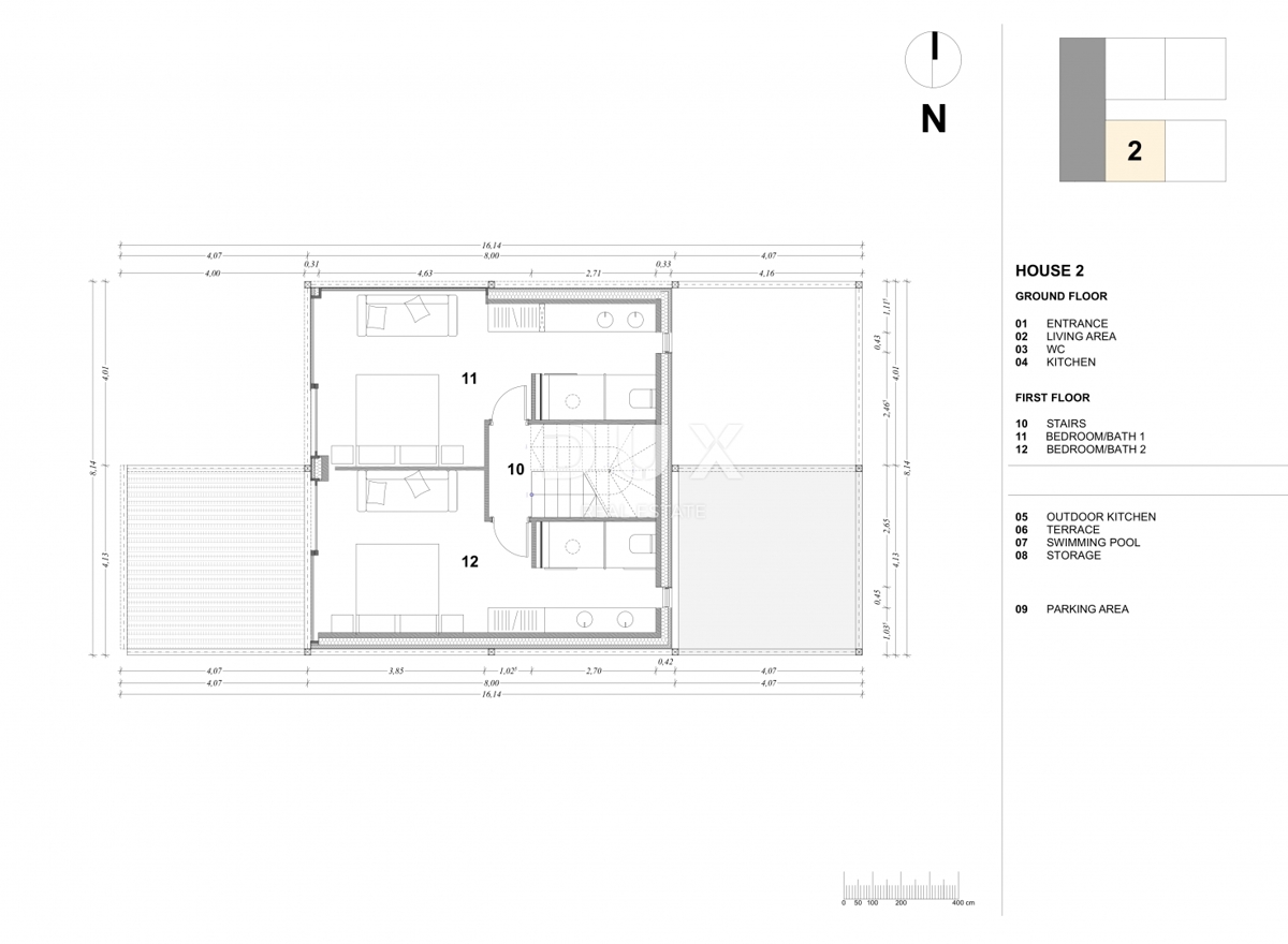
V patře se nacházejí dvě ložnice, obě s vlastní koupelnou. Podlahové vytápění, klimatizace, elektrické žaluzie a velké prosklené stěny zajišťují vysokou úroveň komfortu. Jeden z pokojů má také přístup na krytý balkon.

Tato vila je bezpečnou koupí pro ty, kteří chtějí moderní a udržitelný domov na Istrii, ať už jako druhý domov, rodinné sídlo nebo investici s vynikajícím potenciálem pro turistické pronájmy. Soukromý bazén, zahrada a vysoký standard výstavby ji na trhu dále odlišují.

Další informace, půdorysy, vizualizace a schůzka k prohlídce jsou k dispozici na vyžádání. Takové nemovitosti si kupce najdou velmi rychle.

Vážení klienti, provize realitní kanceláře je účtována v souladu se Všeobecnými obchodními podmínkami:
www.dux-nekretnine.hr/opci-uvjeti-poslovanja
Přehled
  • Typ nemovitosti: Dům
  • Plocha: 126 m2
  • Plocha pozemku: 472 m2
  • Pokoje: 3 pokoje
  • Koupelny: 3 pokoje
  • Parkovací místa: /
  • Parkovací místo: /
  • Garáž: /
  • Podlaží: /
  • Výhled z nemovitosti: na moře
  • Energetická třída: 1
  • Počet zobrazení: /
Detaily nemovitosti
Typ nemovitosti
Dům
Plocha
126 m2
Plocha pozemku
472 m2
Pokoje
3 pokoje
Koupelny
3 pokoje
Parkovací místa
/
Parkovací místo
/
Garáž
/
Podlaží
/
Výhled z nemovitosti
na moře
Energetická třída
1
Počet zobrazení
/
Zobrazení na mapě
  • Město
    UMAG
  • Region
    ISTARSKA
Informace o kanceláři
DUX Nekretnine
Kontaktovat prodejce
DUX Nekretnine
Tony Jerković
+
=