KASTAV, RUBEŠI - nedokončené patro s velkou terasou a výhled... KASTAV, RUBEŠI - nedokončené patro s velkou terasou a výhledem!

150.000 €

Vybavení
  • 132 m2
  • 4
  • 1
Lokalita

RUBEŠI , KASTAV

Popis
KASTAV, RUBEŠI - roh-bau podlaha s velkou terasou a výhledem!

K prodeji je roh-bau podlaha v domě se třemi byty, který se nachází v klidné lokalitě v Rubeši. Dům má list právní moci, který dává budoucímu majiteli bezpečný právní základ pro veškeré další práce a úpravy.

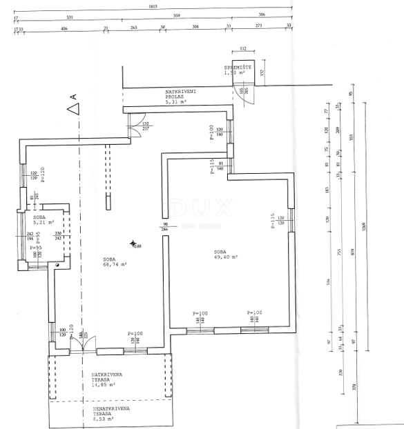
Podlaží má čistou plochu 132,9 m², zatímco obytná část je 123,35 m², s dalšími plochami, které dávají celkovou hrubou plochu 146,73 m².

Velkou výhodou je prostorná terasa s otevřeným výhledem na moře, která dává prostoru výjimečnou hodnotu a možnost vytvořit fantastické obytné prostředí.

Dům není rozdělen na patra, což ponechává budoucímu majiteli prostor pro organizaci dle vlastních potřeb.

Nachází se na velkém pozemku o rozloze 1 090 m², na kterém je možnost vytvoření vlastního parkoviště, zahrady, společenských místností, grilu, markýz a dalších doplňkových zařízení.

Tato nemovitost je ideální pro kupující, kteří si chtějí prostor upravit a vytvořit si byt v domě s terasou, výhledem a možností využití zahrady – skutečná příležitost na trhu.

Při prohlídce nemovitosti je nutné podepsat zprostředkovatelskou smlouvu!

Vážení klienti, provize realitní kanceláře je účtována v souladu se Všeobecnými obchodními podmínkami www.dux-nekretnine.hr/opci-uvjeti-poslovanja
Přehled
  • Typ nemovitosti: Byt
  • Plocha: 132 m2
  • Plocha pozemku: 300 m2
  • Pokoje: 4 pokoje
  • Koupelny: 1 pokoje
  • Parkovací místa: /
  • Parkovací místo: /
  • Garáž: /
  • Podlaží: /
  • Výhled z nemovitosti: na moře
  • Energetická třída: /
  • Počet zobrazení: /
Detaily nemovitosti
Typ nemovitosti
Byt
Plocha
132 m2
Plocha pozemku
300 m2
Pokoje
4 pokoje
Koupelny
1 pokoje
Parkovací místa
/
Parkovací místo
/
Garáž
/
Podlaží
/
Výhled z nemovitosti
na moře
Energetická třída
/
Počet zobrazení
/
Zobrazení na mapě
  • Část obce
    KASTAV
  • Město
    RUBEŠI
  • Region
    PRIMORSKO-GORANSKA
Informace o kanceláři
DUX Nekretnine
Kontaktovat prodejce
DUX Nekretnine
Tony Jerković
+
=