OPATIJA - POBRI, nedokončený dům na pozemku o rozloze 1199 m... OPATIJA - POBRI, nedokončený dům na pozemku o rozloze 1199 m2

195.000 €

Vybavení
  • 317 m2
  • 8
  • 5
Lokalita

POBRI , OPATIJA

Popis
OPATIJA - POBRI

Na prodej je nedokončený samostatně stojící dům na pozemku o rozloze 1199 m2, v krásné a klidné lokalitě, pouhých 5 minut jízdy od moře a centra Opatije.

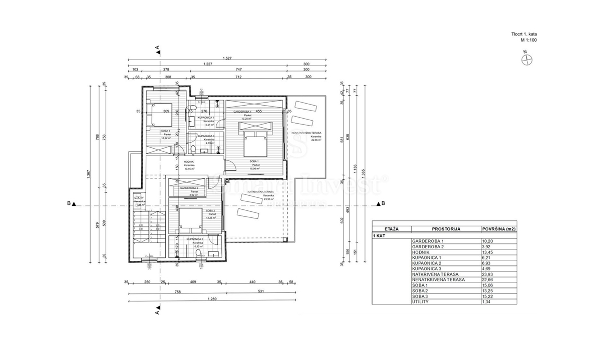
Na dům s dispozicí přízemí + první patro bylo získáno stavební povolení a byla zahájena výstavba (byl postaven suterén). Dle stavebního povolení se dům s celkovou čistou plochou 317,99 m2 skládá ze 2 bytů, každý byt má 3 ložnice, obývací pokoj s kuchyní a jídelnou, koupelnu, další toaletu, prostorné terasy a balkony. V suterénu domu se nachází taverna, toaleta, prádelna a dvě prostorné skladovací místnosti.

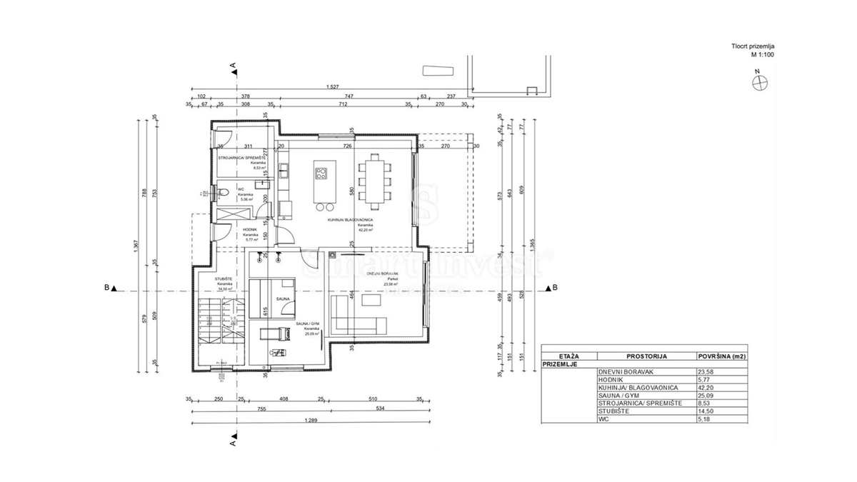
Existuje předběžný návrh na přestavbu domu na moderní rodinný dům s bazénem v přízemí + prvním patře o rozloze 261,71 m2. Dle návrhu by dům měl 3 ložnice, každá s vlastní koupelnou, obývací pokoj s kuchyní a jídelnou, posilovnu a saunu, toaletu a skladovací místnost.

*Půdorysy v inzerátu jsou z předběžného návrhu moderního domu. Cena není pevná.

Pro více informací a domluvení prohlídky volejte: +385/99/320-0008
Přehled
  • Typ nemovitosti: Dům
  • Plocha: 317 m2
  • Plocha pozemku: 1199 m2
  • Pokoje: 8 pokoje
  • Koupelny: 5 pokoje
  • Parkovací místa: /
  • Parkovací místo: 1
  • Garáž: /
  • Podlaží: /
  • Výhled z nemovitosti: /
  • Energetická třída: /
  • Počet zobrazení: /
Detaily nemovitosti
Typ nemovitosti
Dům
Plocha
317 m2
Plocha pozemku
1199 m2
Pokoje
8 pokoje
Koupelny
5 pokoje
Parkovací místa
/
Parkovací místo
1
Garáž
/
Podlaží
/
Výhled z nemovitosti
/
Energetická třída
/
Počet zobrazení
/
Zobrazení na mapě
  • Část obce
    OPATIJA
  • Město
    POBRI
  • Region
    PRIMORSKO-GORANSKA
Informace o kanceláři
Smart Invest Properties
Kontaktovat prodejce
Smart Invest Properties
Agencija Opatija
+
=