Dům Motovun, 300m2 Dům Motovun, 300m2

1.950.000 €

Vybavení
  • 430 m2
  • 8
  • 6
Lokalita

MOTOVUN

Popis
MOTOVUN - Designová vila s tenisovým kurtem a výhledem na Motovun

V srdci malého istrijského města se nachází tato úžasná designová vila, která okouzlí svými elegantními liniemi a mimořádnými detaily. S nádherným výhledem na kouzelný Motovun představuje vila skutečný příklad luxusního bydlení v souladu s přírodou.

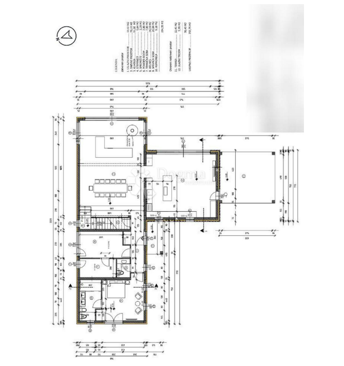
Prostorný obývací pokoj, zařízený pečlivě vybraným koženým nábytkem vyrobeným na míru, zve k tomu, abyste si užili pohodlí ve stylu.
Uprostřed prostoru visí designové lustry, které odrážejí světlo nad dřevěným stolem v jídelně.
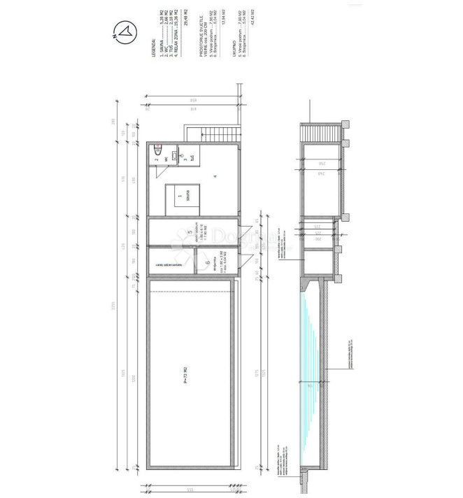
V přízemí domu je jedna ložnice s vlastní koupelnou, fitness, strojovna a podél chodby jsou vestavěné skříně, které poskytují veškerý potřebný prostor.

Dostáváme se do prvního patra, kde jsou tři elegantní ložnice, každá s vlastní koupelnou, která poskytuje naprosté soukromí a pohodlí.
Luxus nejintimnější části domu nejlépe zažijete v hlavní ložnici, kde, stejně jako ve zbytku domu, byly v pokoji a koupelně vybrány designové detaily, sprcha a vana jsou ideální pro relaxaci po dlouhém dni. .
Nerezové koupelnové sprchy se čtyřmi funkcemi a termostatickým ovládáním poskytují další dávku luxusu.

Každý pokoj v této vile je vybaven renomovaným světoznámým designovým nábytkem nejvyšší kvality, pečlivě navrženým výhradně pro tuto nemovitost. Součástí vybavení je podlahové vytápění a chlazení, které zajišťuje komfort po celý rok.
Vila je vhodná pro osoby se zdravotním postižením.

Vzhledem k vysoké kvalitě interiérové ​​i exteriérové ​​výzdoby kuchyně si najmutím vlastního soukromého kuchaře jistě vychutnáte kulinářské speciality ve společnosti rodiny a přátel, s dobrým jídlem a sklenkou špičkových vín ze soukromého vinného sklípku v domě, následuje relaxace a opalování s vyhřívaným nekonečným bazénem, ​​jacuzzi a/nebo saunou, které vás zvou k relaxaci.
Pro sportovní nadšence je k dispozici také tenisový kurt, který nabízí možnost aktivního trávení času.

Hliníkové truhlářství vybavené moskytiérami, elektrická markýza s větrným senzorem poskytuje ochranu před sluncem, díky čemuž je každý okamžik strávený venku nezapomenutelný.

Tato vila není jen domovem a místem k životu; je to místo pro vytváření vzpomínek, relaxaci a užívání si všeho, co Istrie může nabídnout. Blízkost slavných a nejlepších chorvatských vinařství, lisoven, restaurací a agroturistiky je přidanou hodnotou, kde budete hrdí na hostování svých přátel, rodiny a obchodních partnerů, ale také na uzavírání obchodů.

Dokonalost vily a neúměrný luxus je cítit v detailech pečlivě vybraného designového nábytku, jako je např.;
BAXTER vyrobený v Itálii
PAOLA LENTI
GAGGENAU
LAURAMERONOVÉ

Udělejte správné rozhodnutí s naší podporou, pro příjemnou investici a zážitek z nákupu nemovitosti nás s důvěrou kontaktujte:






Marija Šantor
Agent s licencom
Mob: +385 922827379
marija.santor@dogma-nekretnine.com
Přehled
  • Typ nemovitosti: Dům
  • Plocha: 430 m2
  • Plocha pozemku: 2800 m2
  • Pokoje: 8 pokoje
  • Koupelny: 6 pokoje
  • Parkovací místa: /
  • Parkovací místo: 1
  • Garáž: /
  • Podlaží: /
  • Výhled z nemovitosti: /
  • Energetická třída: 1
  • Počet zobrazení: /
Detaily nemovitosti
Typ nemovitosti
Dům
Plocha
430 m2
Plocha pozemku
2800 m2
Pokoje
8 pokoje
Koupelny
6 pokoje
Parkovací místa
/
Parkovací místo
1
Garáž
/
Podlaží
/
Výhled z nemovitosti
/
Energetická třída
1
Počet zobrazení
/
Zobrazení na mapě
  • Město
    MOTOVUN
  • Region
    ISTARSKA
Informace o kanceláři
Dogma nekretnine d.o.o.
Kontaktovat prodejce
Dogma nekretnine d.o.o.
Marija Šantor
+
=

Podobné nemovitosti