Dům Centar, Varaždin, 137,70m2 Dům Centar, Varaždin, 137,70m2

300.000 €

Vybavení
  • 137 m2
  • 5
  • 1
Lokalita

VARAŽDIN

Popis
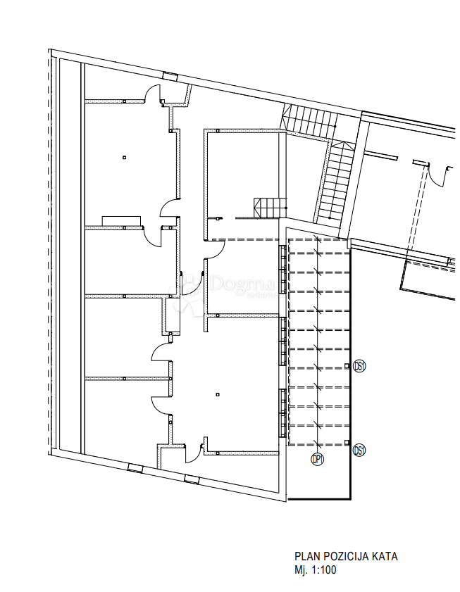
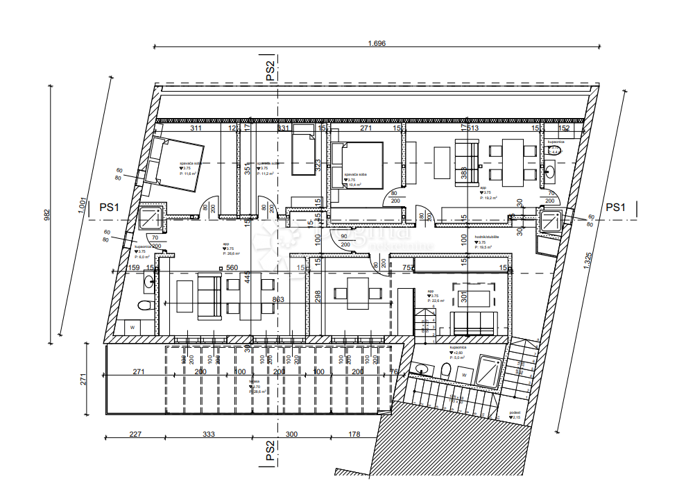
VÝHODNÁ INVESTIČNÍ PŘÍLEŽITOST – DŮM SE SCHVÁLENÝM PROJEKTEM NA VÝSTAVBU 5 BYTŮ V CENTRU VARAŽDINU V centru Varaždinu se prodává dům s výjimečným investičním potenciálem, ideální pro investory nebo developery, kteří hledají projekt s již schválenou dokumentací a možností rychlé realizace. Nemovitost se dodává se schváleným projektem na výstavbu pěti bytových jednotek – dvou v přízemí a tří v prvním patře. V přízemí se nacházejí dva prostorné byty: první byt s kuchyní, koupelnou a třemi pokoji propojenými s chodbou a druhý byt s chodbou, kuchyní, dvěma pokoji a koupelnou. V prvním patře jsou plánovány další tři bytové jednotky s moderním uspořádáním s vynikajícím potenciálem k prodeji nebo pronájmu. Zvláštní výhodou této nemovitosti je skutečnost, že dům má v jedné části také suterén, což představuje přidanou hodnotu a příležitost vytvořit zajímavý obchodní prostor dle zájmů investora – například pro kancelář, ateliér, mini galerii, vinný sklep nebo malou cateringovou nabídku. Dle schváleného projektu je ve dvoře plánováno pět parkovacích míst, což dále zvyšuje funkčnost a atraktivitu budoucích bytů. Poloha v samém centru Varaždinu zajišťuje blízkost veškeré důležité občanské vybavenosti - škol, obchodů, obchodních zařízení a kulturních atrakcí. Takové příležitosti v centru města jsou vzácné a představují vynikající investiční příležitost s jasnou návratností a dlouhodobou ziskovostí. Ideální pro investory, kteří chtějí bezpečnou, ziskovou a rychle realizovatelnou příležitost v atraktivní městské lokalitě! Pro veškeré další informace o této vynikající investici a prohlídce mě neváhejte s důvěrou kontaktovat! Bojana Patekar Mobil: +385 98 297 777 mail: bojana.patekar@dogma-nekretnine.com
Přehled
  • Typ nemovitosti: Dům
  • Plocha: 137 m2
  • Plocha pozemku: 586 m2
  • Pokoje: 5 pokoje
  • Koupelny: 1 pokoje
  • Parkovací místa: /
  • Parkovací místo: 1
  • Garáž: /
  • Podlaží: /
  • Výhled z nemovitosti: /
  • Energetická třída: /
  • Počet zobrazení: /
Detaily nemovitosti
Typ nemovitosti
Dům
Plocha
137 m2
Plocha pozemku
586 m2
Pokoje
5 pokoje
Koupelny
1 pokoje
Parkovací místa
/
Parkovací místo
1
Garáž
/
Podlaží
/
Výhled z nemovitosti
/
Energetická třída
/
Počet zobrazení
/
Zobrazení na mapě
  • Město
    VARAŽDIN
  • Region
    VARAŽDINSKA
Informace o kanceláři
Dogma nekretnine d.o.o.
Kontaktovat prodejce
Dogma nekretnine d.o.o.
Bojana Patekar
+
=

Podobné nemovitosti