Byt Varoš, Šibenik, 109m2 Byt Varoš, Šibenik, 109m2

265.000 €

Vybavení
  • 105 m2
  • 5
  • 1
Lokalita

ŠIBENIK

Popis
Prostorný a slunný byt je k prodeji ve výjimečné mikrolokaci v Šibeniku - čtvrti Građa.

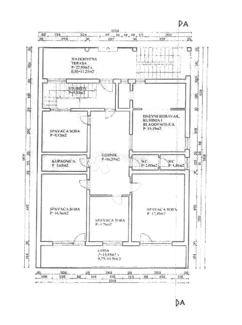
Nachází se pod pevností sv. Jana, v bezprostřední blízkosti pevnosti Barone, a nabízí krásný výhled na šibenické střechy, moře a pevnost sv. Michala. Blízkost všech významných městských institucí, služeb a památek dále zdůrazňuje atraktivitu této nemovitosti. Byt se nachází v bytovém domě z poloviny 60. let 20. století. Budova je dvojdomek a skládá se z přízemí se zahradou, prvního a druhého patra a vysokého podkroví. Není rozdělen na bytové jednotky. Při pohledu z jižní strany se byt nachází v prvním patře, zatímco ze severní strany je v úrovni terénu s přímým přístupem z ulice. Přístup do bytu je možný po schodišti na jižní straně a také přes severní vchod z ulice. Byt je orientován na tři světové strany - sever, východ a jih - což zajišťuje dostatek přirozeného světla po celý den. Skládá se z prostorné vstupní haly, kuchyně, jídelny, samostatné toalety, koupelny a čtyř ložnic. Velká otevřená lodžie se táhne podél celé jižní strany bytu a poskytuje příjemný prostor pro venkovní bydlení. Stávající nábytek a vybavení zůstanou budoucímu kupujícímu. Podlahy v pokojích jsou pokryty kvalitními bukovými parketami, zatímco v ostatních pokojích je dlažba z terazza. Byt je vybaven novými venkovními PVC tesařskými stoly. Výška stropů je 280 cm. Nemovitost je vhodná pro rodinný život, ale - díky funkční dispozici - ji lze snadno přestavět i pro firemní účely. Dispozice a rozměry místností jsou viditelné v přiloženém půdorysu. Byt je udržovaný, vybaven základním nábytkem a vybavením a ihned k nastěhování. Parkování je možné na bezplatném veřejném parkovišti ve stejné ulici. Nemovitost je úhledná a nezatížená.

Pro další informace nebo pro domluvení prohlídky mě neváhejte kontaktovat.
ILIJA RAČUNICA E-mail: ilija.racunica@dogma-nekretnine.com
Mob./WhatsApp: +385 91 495 7567
Přehled
  • Typ nemovitosti: Byt
  • Plocha: 105 m2
  • Plocha pozemku: / m2
  • Pokoje: 5 pokoje
  • Koupelny: 1 pokoje
  • Parkovací místa: /
  • Parkovací místo: /
  • Garáž: /
  • Podlaží: 1
  • Výhled z nemovitosti: /
  • Energetická třída: /
  • Počet zobrazení: /
Detaily nemovitosti
Typ nemovitosti
Byt
Plocha
105 m2
Plocha pozemku
/ m2
Pokoje
5 pokoje
Koupelny
1 pokoje
Parkovací místa
/
Parkovací místo
/
Garáž
/
Podlaží
1
Výhled z nemovitosti
/
Energetická třída
/
Počet zobrazení
/
Zobrazení na mapě
  • Město
    ŠIBENIK
  • Region
    ŠIBENSKO-KNINSKA
Informace o kanceláři
Dogma nekretnine d.o.o.
Kontaktovat prodejce
Dogma nekretnine d.o.o.
Ilija Računica
+
=

Podobné nemovitosti