VODICE - LUXUSNÍ VILLA S BAZÉNEM A PROSTORNÝMI TERASAMI VODICE - LUXUSNÍ VILLA S BAZÉNEM A PROSTORNÝMI TERASAMI

650.000 €

Vybavení
  • 157 m2
  • 4
  • 4
Lokalita

VODICE

Popis
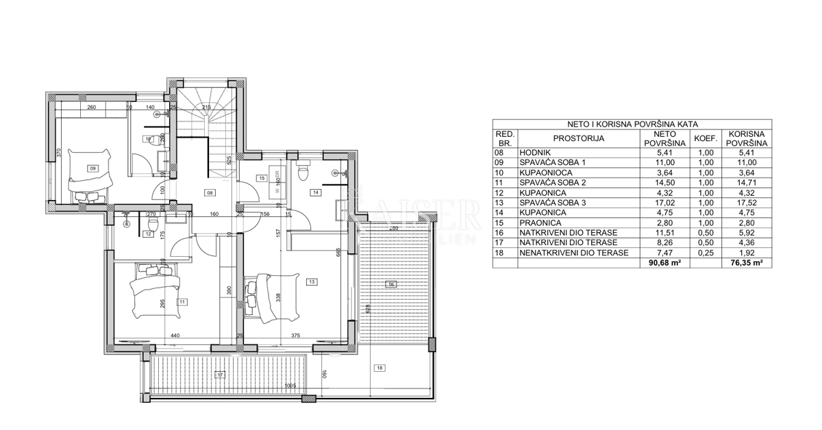
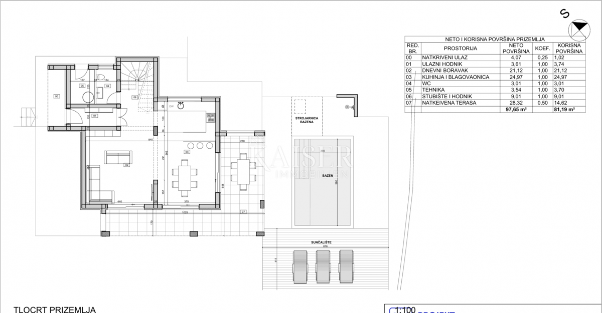
Představujeme vám výjimečnou příležitost ke koupi moderní vily nacházející se v idylickém prostředí Vodice. Tato luxusně navržená nemovitost nabízí dokonalou kombinaci středomořského kouzla, moderní architektury a vynikajícího komfortu, ideální pro rodinný život, dovolenou nebo jako investici k turistickému pronájmu. Prostorné přízemí – srdce domova (čistá plocha: 97,65 m²) Přízemí vily je navrženo jako otevřený, světlý prostor určený k setkávání a relaxaci. Dominuje mu prostorný obývací pokoj (21,12 m²), který plynule přechází s elegantní kuchyní a jídelnou (24,97 m²) a vytváří tak dokonalou atmosféru pro rodinná setkání a zábavu. Z těchto místností je přímý přístup na velkou krytou terasu (28,32 m² / 14,62 m² užitné), která poskytuje stín a je ideálním místem pro stolování pod širým nebem. Mezi další vlastnosti přízemí patří: Krytý vchod (4,07 m² / 1,02 m² užitné) – elegantní uvítání v domě. Vstupní hala (3,61 m²) – funkční a prostorná. WC (3,01 m²) – výhodně umístěné pro hosty. Technická místnost (3,54 m²) – diskrétně umístěná pro instalace. Schodiště a chodba (9,01 m²) – vedou do horního patra. Komfortní patro – Oáza klidu a soukromí (Čistá plocha: 90,68 m²) Patro vily je určeno k relaxaci a soukromí, se třemi prostornými ložnicemi s koupelnami a dalšími terasami. Detailní uspořádání patra: CHODBA (5,41 m²) – propojuje všechny místnosti na patře. LOŽNICE 1 (11,00 m²) – prostorná a pohodlná. KOUPELNA (3,64 m²) – elegantně zařízená. LOŽNICE 2 (14,50 m²) – s vlastní koupelnou. KOUPELNA (4,32 m²) – vedle ložnice 2. LOŽNICE 3 (17,02 m²) – největší ložnice pro naprosté pohodlí. KOUPELNA (4,75 m²) – vedle ložnice 3. PRÁDELNA (2,80 m²) – praktická pro každodenní život. KRYTÁ TERASA (11,51 m² / 5,92 m² užitná) – ideální místo pro ranní kávu. KRYTÁ TERASA (8,26 m² / 4,36 m² užitná) – další prostor pro relaxaci. NEKRYTÁ TERASA (7,47 m² / 1,92 m² užitná) – pro opalování a panoramatický výhled. Celková čistá plocha domu (přízemí + první patro) je impozantních 188,33 m²! Prostorný pozemek pro naprosté potěšení (619 m²) Venkovní prostor přízemí zdobí krásný bazén (24 m²) s prostornou plochou na opalování (97,41 m²), stvořený pro užívání si letních dnů a relaxaci pod středomořským sluncem. Dvůr o celkové rozloze 619 m² nabízí také 263,98 m² zeleně, což zajišťuje soukromí a přírodní atmosféru. Dlážděný vjezd a parkoviště zabírají 98,55 m², což poskytuje dostatek prostoru pro vozidla. Možnost osobního razítka Tato vila je v současné době v poslední fázi výstavby, což dává novým majitelům jedinečnou příležitost podílet se na finalizaci interiérového designu. Vyberte si detaily, jako jsou podlahy, sanitární keramika, vnitřní truhlářské práce a další prvky, abyste si vytvořili domov dle vlastní míry a stylu. Tato vila je ideálním domovem pro ty, kteří hledají kvalitu, luxus a klid a zároveň chtějí být blízko veškerého vybavení, které Vodice nabízí. Užijte si moderní design, funkční uspořádání a krásný venkovní prostor s bazénem. Nenechte si ujít tuto jedinečnou příležitost! Provize realitní kanceláře pro kupujícího činí 3 % + DPH a je vyplácena v případě koupě nemovitosti, při uzavření první právní listiny. Prohlídka nemovitosti je možná pouze po předchozím podpisu smlouvy o zprostředkování realitních transakcí. Pokud si chcete nemovitost osobně prohlédnout, kontaktujte prosím: Joško Bašić E-mail: josko@kaiser-immobilien.hr Tel: +385-91-511-2993 http://kaiser-immobilien.hr/
Přehled
  • Typ nemovitosti: Dům
  • Plocha: 157 m2
  • Plocha pozemku: / m2
  • Pokoje: 4 pokoje
  • Koupelny: 4 pokoje
  • Parkovací místa: /
  • Parkovací místo: /
  • Garáž: /
  • Podlaží: /
  • Výhled z nemovitosti: na moře
  • Energetická třída: 1
  • Počet zobrazení: /
Detaily nemovitosti
Typ nemovitosti
Dům
Plocha
157 m2
Plocha pozemku
/ m2
Pokoje
4 pokoje
Koupelny
4 pokoje
Parkovací místa
/
Parkovací místo
/
Garáž
/
Podlaží
/
Výhled z nemovitosti
na moře
Energetická třída
1
Počet zobrazení
/
Zobrazení na mapě
  • Město
    VODICE
  • Region
    ŠIBENSKO-KNINSKA
Informace o kanceláři
Kaiser Immobilien
Kontaktovat prodejce
+
=