Komerční prostor Brajda, Rijeka, 145m2 Komerční prostor Brajda, Rijeka, 145m2

395.000 €

Vybavení
  • 145 m2
  • 1
  • 1
Lokalita

RIJEKA

Popis
RIJEKA – BRAJDA

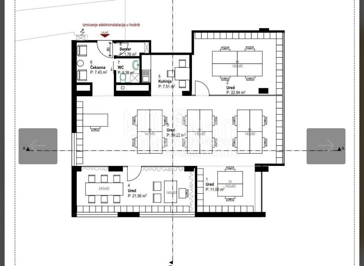
Na prodej je nově zrekonstruovaný kancelářský prostor o rozloze 145 m², umístěný v reprezentativní budově s výtahem, na atraktivní obchodní lokaci. Prostor je otevřeného typu, s velkými okny nabízejícími krásný výhled na moře, centrum města a horu Učka.

Plně zrekonstruováno – nové instalace, nová okna a elektrické žaluzie. Kromě hlavní otevřené části má prostor také čajovou kuchyňku, toaletu a serverovnu, což zajišťuje funkčnost a pohodlí.

Lokalita je velmi atraktivní – prestižní část města s výbornou dopravní dostupností a blízkostí všech klíčových služeb. V bezprostřední blízkosti se nachází několik parkovišť, což je zásadní pro dostupnost klientů i zaměstnanců.

Tato nemovitost spojuje moderní design, atraktivní polohu a praktičnost a představuje vynikající příležitost pro kanceláře, agentury, poradenské firmy, IT společnosti nebo jiné podnikatelské subjekty, které chtějí profesionální a reprezentativní prostory v centru Rijeky.

Pro více informací a prohlídku volejte +385/99/320-0008.
Přehled
  • Typ nemovitosti: Komerční prostor
  • Plocha: 145 m2
  • Plocha pozemku: / m2
  • Pokoje: 1 pokoje
  • Koupelny: 1 pokoje
  • Parkovací místa: /
  • Parkovací místo: /
  • Garáž: /
  • Podlaží: 6
  • Výhled z nemovitosti: na moře
  • Energetická třída: /
  • Počet zobrazení: /
Detaily nemovitosti
Typ nemovitosti
Komerční prostor
Plocha
145 m2
Plocha pozemku
/ m2
Pokoje
1 pokoje
Koupelny
1 pokoje
Parkovací místa
/
Parkovací místo
/
Garáž
/
Podlaží
6
Výhled z nemovitosti
na moře
Energetická třída
/
Počet zobrazení
/
Zobrazení na mapě
  • Město
    RIJEKA
  • Region
    PRIMORSKO-GORANSKA
Informace o kanceláři
Smart Invest Properties
Kontaktovat prodejce
+
=