RIJEKA, KUKULJANOVO – Novostavba – Pozemek o rozloze 2350 m2... RIJEKA, KUKULJANOVO – Novostavba – Pozemek o rozloze 2350 m2 v centru průmyslové zóny se stavebním povolením

400.000 €

Vybavení
  • 2.350 m2
Lokalita

KUKULJANOVO , BAKAR

Popis
RIJEKA, KUKULJANOVO – Novostavba – Pozemek o rozloze 2350 m2 v centru průmyslové zóny se stavebním povolením

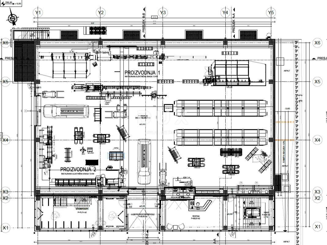
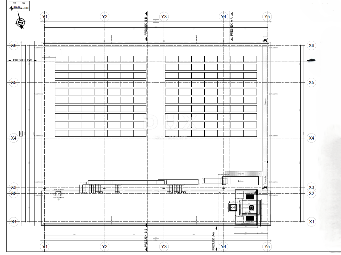
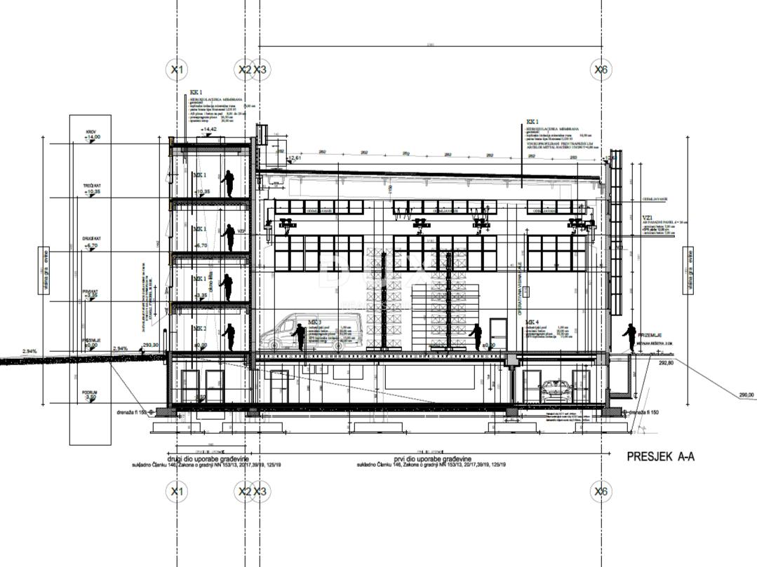
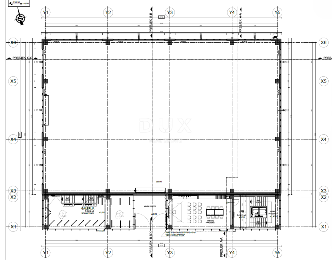
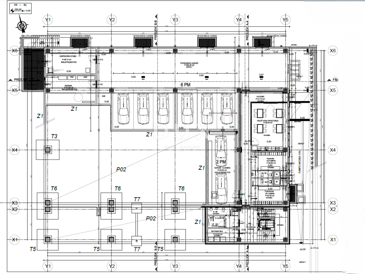
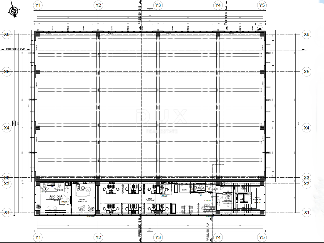
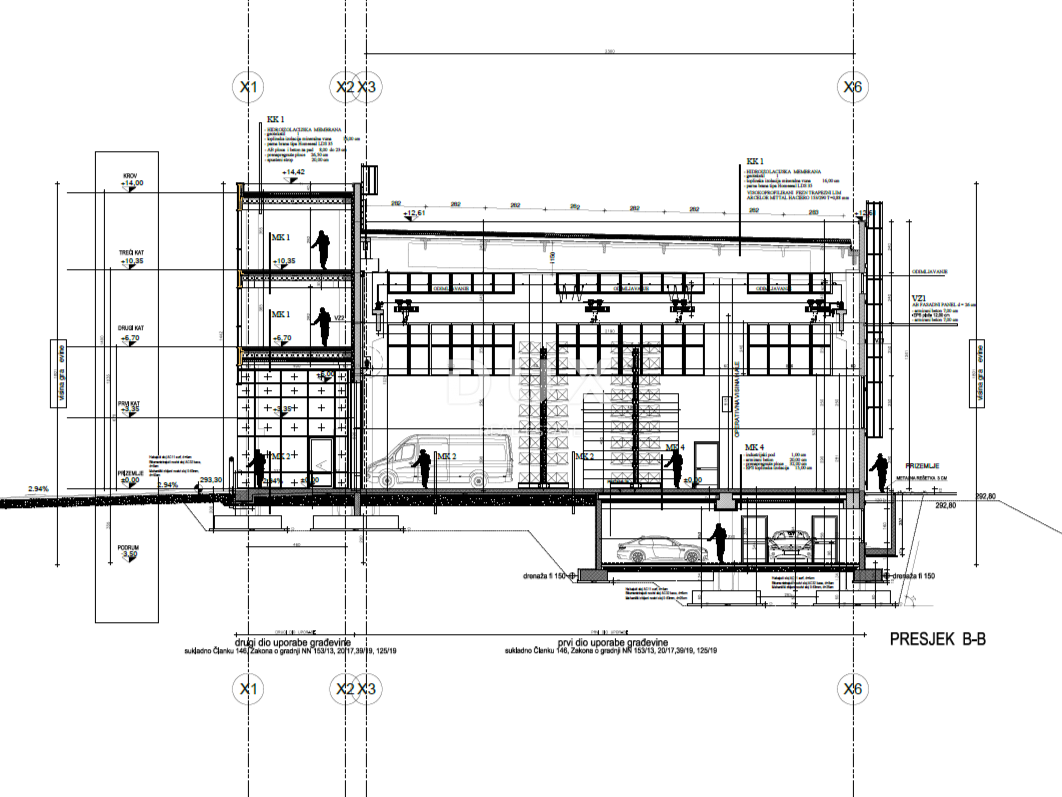
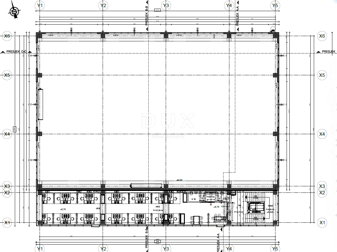
Nabízíme mimořádně vzácný stavební pozemek o rozloze téměř 2500 m2 v centru průmyslové zóny Kukuljanovo, Rijeka, se stavebním povolením. Tento pozemek s kompletní infrastrukturou představuje ideální investiční příležitost. Pozemek je rovinatý a připravený k výstavbě, přístupný po asfaltu a s přípojkami inženýrských sítí elektřiny, vody a kanalizace. Vzhledem k územnímu plánu lze až 50 % pozemku využít k výstavbě a výška budovy je omezena na úctyhodných 50 metrů. Vlastnictví je zcela čisté a uklizené, zapsané na společnost, což znamená, že proces koupě je možný okamžitě. Výše uvedený pozemek má stavební povolení na budovu o podlahové ploše 1150 m2 - celkem na dvou podlažích. Rádi potenciálnímu kupujícímu poskytneme nahlédnutí do projektů. Nenechte si ujít příležitost stát se vlastníkem tohoto cenného pozemku v průmyslovém centru Kukuljanova, protože takové nabídky na trhu nejsou běžné.

Vážení klienti, provize realitní kanceláře je účtována v souladu s Všeobecnými obchodními podmínkami. www.dux-nekretnine.hr/opci-uvjeti-poslovanja
Přehled
  • Typ nemovitosti: Pozemek
  • Plocha: 2350 m2
  • Plocha pozemku: / m2
  • Pokoje: / pokoje
  • Koupelny: / pokoje
  • Parkovací místa: /
  • Parkovací místo: /
  • Garáž: /
  • Podlaží: /
  • Výhled z nemovitosti: /
  • Energetická třída: /
  • Počet zobrazení: /
Detaily nemovitosti
Typ nemovitosti
Pozemek
Plocha
2350 m2
Plocha pozemku
/ m2
Pokoje
/ pokoje
Koupelny
/ pokoje
Parkovací místa
/
Parkovací místo
/
Garáž
/
Podlaží
/
Výhled z nemovitosti
/
Energetická třída
/
Počet zobrazení
/
Zobrazení na mapě
  • Část obce
    BAKAR
  • Město
    KUKULJANOVO
  • Region
    PRIMORSKO-GORANSKA
Informace o kanceláři
DUX Nekretnine
Kontaktovat prodejce
DUX Nekretnine
Tony Jerković
+
=