ISTRIE, ŠTOKOVCI - vila "na klíč" s bazéne... ISTRIE, ŠTOKOVCI - vila "na klíč" s bazénem v srdci Istrie

441.000 €

Vybavení
  • 111 m2
  • 4
  • 2
Lokalita

ŠTOKOVCI , SVETVINČENAT

Popis
ISTRIE, ŠTOKOVCI - Vila s bazénem v srdci Istrie

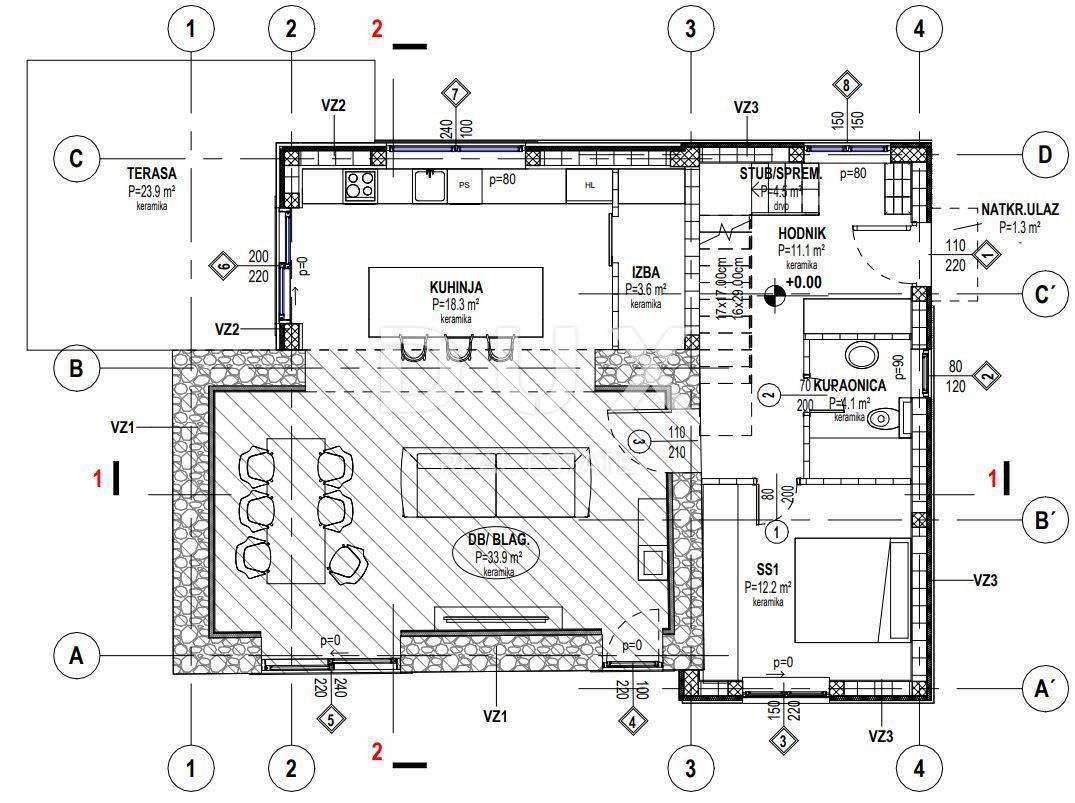
Dům je momentálně ve výstavbě - plánuje se samostatně stojící obytný dům, přízemí a první patro, pomocné budovy - bazén s bazénovým vybavením, sběrná jímka, 2 parkovací místa. Dům se nachází na konci obce ve slepé ulici, pozemek má 614 m2, dům má čistou plochu 111 m2. Má přístup z veřejné komunikace, je ze 3 stran obklopen suchými kamennými zdmi. Přízemí domu zahrnuje následující místnosti: obývací pokoj, jídelnu (v obývacím pokoji a jídelně je výška stropu 5 m) a kuchyň jako otevřený prostor, spíž, koupelnu, chodbu, ložnici. Do prvního patra se vstupuje po vnitřním schodišti a v prvním patře se nacházejí 2 ložnice a koupelna. Venkovní dlážděná terasa má 23 m2, bazén má 28 m2. V bezprostřední blízkosti pozemku se nacházejí domy místních obyvatel a rekreační domy, takže budoucí dům je ideální pro ty, kteří chtějí využívat všech výhod, které nabízí klidná istrijská vesnice, nebo pro investory, kteří si mohou vydělat vynikající příjem z pronájmu rekreačního domu. Na pozemku jsou přípojky na elektřinu a vodu. Na dům je vydáno platné stavební povolení a jsou zaplaceny příspěvky na energie. Cena za dokončený dům na klíč je uvedena v inzerátu. Je také možné koupit nemovitost v nedokončené fázi, cena se odvíjí od stupně dokončení.

Vážení klienti, provize realitní kanceláře je účtována v souladu s Všeobecnými obchodními podmínkami. https://www.dux-nekretnine.hr/opci-uvjeti-poslování
Přehled
  • Typ nemovitosti: Dům
  • Plocha: 111 m2
  • Plocha pozemku: 614 m2
  • Pokoje: 4 pokoje
  • Koupelny: 2 pokoje
  • Parkovací místa: /
  • Parkovací místo: /
  • Garáž: /
  • Podlaží: /
  • Výhled z nemovitosti: /
  • Energetická třída: /
  • Počet zobrazení: /
Detaily nemovitosti
Typ nemovitosti
Dům
Plocha
111 m2
Plocha pozemku
614 m2
Pokoje
4 pokoje
Koupelny
2 pokoje
Parkovací místa
/
Parkovací místo
/
Garáž
/
Podlaží
/
Výhled z nemovitosti
/
Energetická třída
/
Počet zobrazení
/
Zobrazení na mapě
  • Část obce
    SVETVINČENAT
  • Město
    ŠTOKOVCI
  • Region
    ISTARSKA
Informace o kanceláři
DUX Nekretnine
Kontaktovat prodejce
DUX Nekretnine
Tony Jerković
+
=