ISTRIE, LABIN - Moderní vila obklopená přírodou ISTRIE, LABIN - Moderní vila obklopená přírodou

0 €

Vybavení
  • 500 m2
  • 6
  • 7
Lokalita

LABIN

Popis
ISTRIE, LABIN - Moderní vila obklopená přírodou

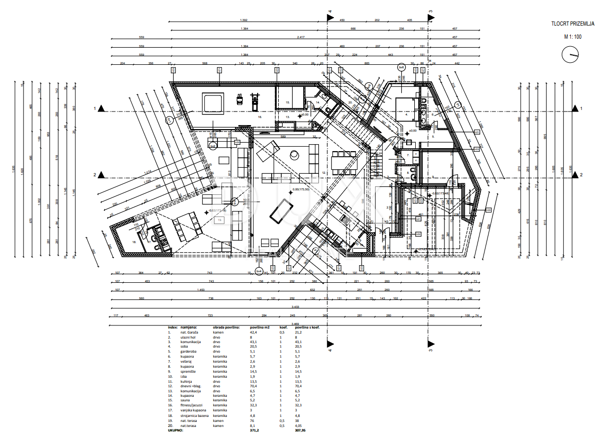
Na jihovýchodním pobřeží Istrie, kde se zelené kopce setkávají s mořem, kde se příroda a dědictví spojují, se nacházejí dvě města podobné velikosti s odlišným, ale vzájemně se doplňujícím charakterem - Labin a Rabac. Malebné městečko Labin se tyčí na 320 m vysokém kopci, pouhé čtyři kilometry od bílých oblázkových pláží Rabacu. Labin, který byl krátce vyhlášen nezávislou republikou, protkaný bohatou historií a hornictvím, které tuto oblast poznamenaly, je dnes fascinujícím městem rozporů; starého a nového, historie a současnosti, cestovního ruchu a umění. Nedaleko města Labinu se prodává moderní vila obklopená přírodou. Nemovitost představuje harmonii prostoru, potřeb, funkcí, konstrukce a krásy a mikrolokace nabízí autentický zážitek malého istrijského městečka, intimitu a úlevu od každé hektické námahy a hluku, a zároveň je blízko moře a městské vybavenosti města Labin. Kromě lokality, která poskytuje naprostý komfort a soukromí, se nemovitost vyznačuje také kvalitou konstrukce, která zaručuje dlouhodobou spokojenost a kvalitu bydlení. Vila svou architekturou splývá s okolím a krajinou, a to jak formou, tak i barvou, a vytváří tak synergii přírodního prostředí a moderního designu. Je definována jako jedna obytná jednotka, jejíž plocha je rozložena na dvou vkusně zařízených a dobře vybavených podlažích s funkčním půdorysem. Přízemí se skládá z prostorného otevřeného konceptu, který spojuje kuchyň, jídelnu a obývací pokoj s přístupem na prostornou krytou terasu s letní kuchyní, venkovní toaletou a úložným prostorem. Půdorys přízemí je doplněn posilovnou s fitness vybavením, ložnicí s vlastní koupelnou, toaletou pro hosty, prádelnou a technickou místností s úložným prostorem. První patro se skládá z chodby na galerii a tří ložnic s vlastními koupelnami a soukromými terasami. Dvůr je ambientálně a hortikulturně zařízený a úplnou harmonii zajišťuje bazén s prostorem na opalování. Vynikající poloha a prostorové uspořádání interiéru i exteriéru této nemovitosti poskytují příležitost pro pohodlný rodinný život nebo investici do turistického pronájmu.

Vážení klienti, provize realitní kanceláře je účtována v souladu s Všeobecnými obchodními podmínkami: www.dux-nekretnine.hr/opci-uvjeti-poslovanja
Přehled
  • Typ nemovitosti: Dům
  • Plocha: 500 m2
  • Plocha pozemku: 7500 m2
  • Pokoje: 6 pokoje
  • Koupelny: 7 pokoje
  • Parkovací místa: /
  • Parkovací místo: /
  • Garáž: /
  • Podlaží: /
  • Výhled z nemovitosti: /
  • Energetická třída: 1
  • Počet zobrazení: /
Detaily nemovitosti
Typ nemovitosti
Dům
Plocha
500 m2
Plocha pozemku
7500 m2
Pokoje
6 pokoje
Koupelny
7 pokoje
Parkovací místa
/
Parkovací místo
/
Garáž
/
Podlaží
/
Výhled z nemovitosti
/
Energetická třída
1
Počet zobrazení
/
Zobrazení na mapě
  • Město
    LABIN
  • Region
    ISTARSKA
Informace o kanceláři
DUX Nekretnine
Kontaktovat prodejce
DUX Nekretnine
Tony Jerković
+
=