Mieszkanie z pięknym widokiem, Šibenik-Žaborić Mieszkanie z pięknym widokiem, Šibenik-Žaborić

389.900 €

Vybavení
  • 70 m2
  • 2
  • 2
Lokalita

ŽABORIĆ , ŠIBENIK

Popis
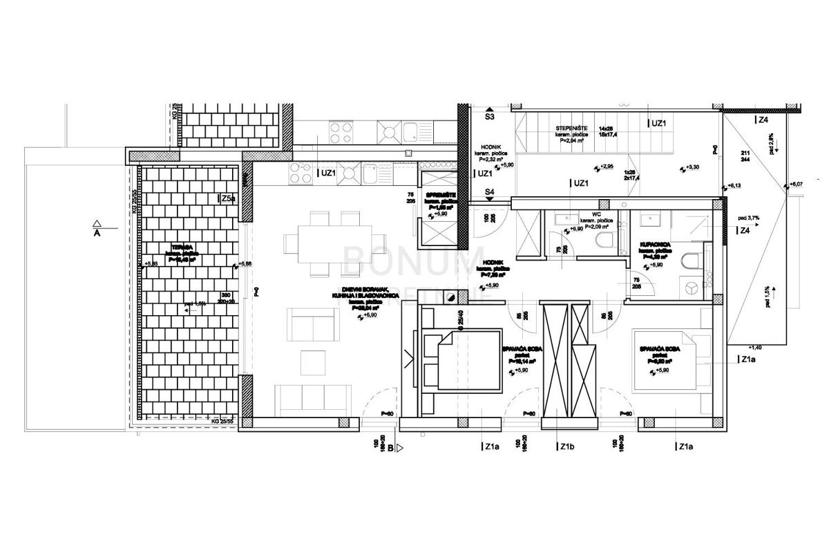
K prodeji je atraktivní třípokojový byt nacházející se ve druhém patře moderní budovy v Žaborići, pouhých 130 metrů od moře. Byt s celkovou obytnou plochou 64,35 m² se skládá ze tří ložnic, kuchyně s jídelnou a obývacím pokojem, chodby, úložného prostoru, koupelny a další toalety.

Zvláštní výhodou bytu je prostorná terasa o rozloze 18,76 m² s krásným výhledem na moře, ideální pro příjemné teplé středomořské večery. Každý pokoj bude pro maximální pohodlí klimatizován.

K bytu náleží dvě parkovací místa a úložný prostor v suterénu budovy o rozloze 6,86 m².

Zahájení výstavby je plánováno na podzim 2025 a dokončení prací se očekává na jaře 2027.

Žaborić je jedno z nejkrásnějších míst na Šibenické riviéře, známé svým křišťálově čistým mořem, udržovanými plážemi a klidnou atmosférou ideální pro dovolenou. Nachází se jen pár minut jízdy od Šibeniku a nabízí perfektní rovnováhu mezi klidným bydlením u moře a blízkostí veškeré městské vybavenosti.

Tyto apartmány představují vynikající příležitost k nákupu nemovitosti, která kombinuje pohodlí, funkčnost a prestižní lokalitu, a díky blízkosti pláže jsou také vynikající volbou pro turistické pronájmy.
Přehled
  • Typ nemovitosti: Byt
  • Plocha: 70 m2
  • Plocha pozemku: / m2
  • Pokoje: 2 pokoje
  • Koupelny: 2 pokoje
  • Parkovací místa: /
  • Parkovací místo: /
  • Garáž: /
  • Podlaží: 2
  • Výhled z nemovitosti: /
  • Energetická třída: /
  • Počet zobrazení: /
Detaily nemovitosti
Typ nemovitosti
Byt
Plocha
70 m2
Plocha pozemku
/ m2
Pokoje
2 pokoje
Koupelny
2 pokoje
Parkovací místa
/
Parkovací místo
/
Garáž
/
Podlaží
2
Výhled z nemovitosti
/
Energetická třída
/
Počet zobrazení
/
Zobrazení na mapě
  • Část obce
    ŠIBENIK
  • Město
    ŽABORIĆ
  • Region
    ŠIBENSKO-KNINSKA
Informace o kanceláři
Bonum nekretnine d.o.o.
Kontaktovat prodejce
Bonum nekretnine d.o.o.
Tomislav Drežnjak
+
=