DIKLO (ZADAR) - BYT S1 PŘÍZEMÍ S VÝHLEDEM NA MOŘE, ZAHRADA 1... DIKLO (ZADAR) - BYT S1 PŘÍZEMÍ S VÝHLEDEM NA MOŘE, ZAHRADA 150m²

507.000 €

Vybavení
  • 133 m2
  • 4
  • 2
Lokalita

ZADAR

Popis
DIKLO (ZADAR) - BYT S1 PŘÍZEMÍ S VÝHLEDEM NA MOŘE, ZAHRADA 150m²

Klidná lokalita poblíž pláže. Všechny byty mají výhled na moře.

Byt S1 se nachází v přízemí menšího obytného domu s celkem 6 bytovými jednotkami.

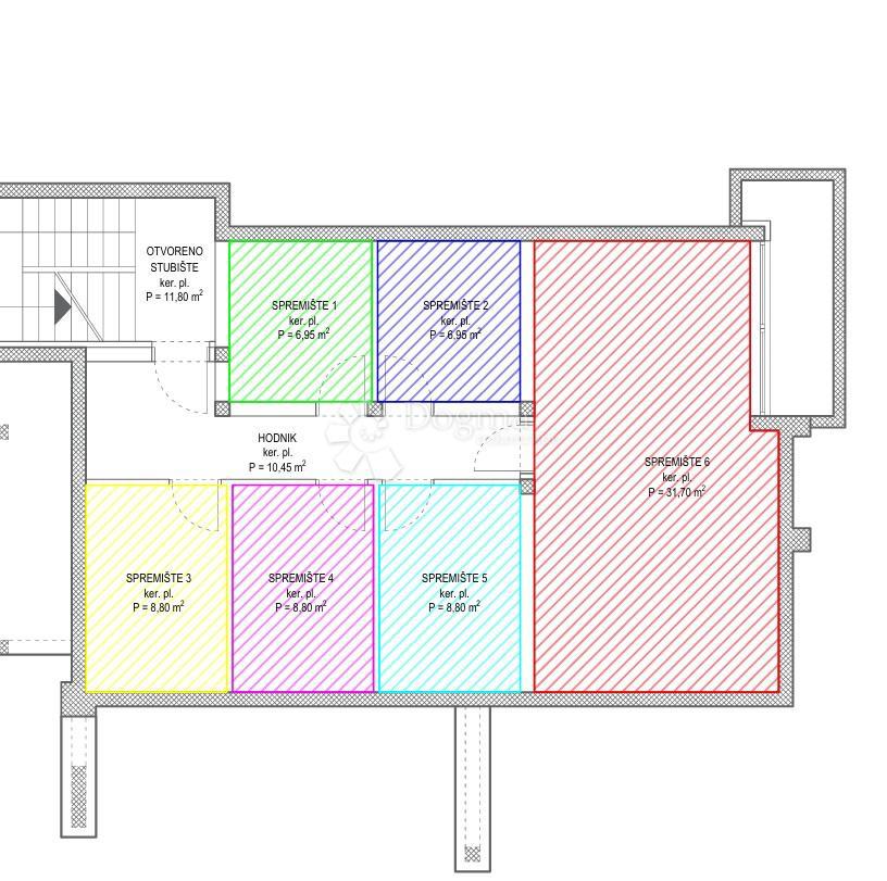
Skládá se z chodby, kuchyně, jídelny a obývacího pokoje, tří ložnic, dvou koupelen a prádelny. K bytu náleží velká lodžie 14,60m², prostorný sklep 31,70m², dvě parkovací místa, velká zahrada 150m² a dlážděná část okolí 19,60m².

Vnitřní obytná plocha: 82,40m². Celková hrubá plocha včetně všech příslušenství: 228,80m², tj. 133,62 čisté prodejní plochy.

Financování dostupné pro občany EU.
Číslo jedna mezi realitními kancelářemi v Chorvatsku již 25 let.

Pro více informací:
Vedrana Bašić +385919077396
E-mail: vedrana.basic@dogma-nekretnine.com
Přehled
  • Typ nemovitosti: Byt
  • Plocha: 133 m2
  • Plocha pozemku: / m2
  • Pokoje: 4 pokoje
  • Koupelny: 2 pokoje
  • Parkovací místa: /
  • Parkovací místo: 1
  • Garáž: /
  • Podlaží: /
  • Výhled z nemovitosti: na moře
  • Energetická třída: /
  • Počet zobrazení: /
Detaily nemovitosti
Typ nemovitosti
Byt
Plocha
133 m2
Plocha pozemku
/ m2
Pokoje
4 pokoje
Koupelny
2 pokoje
Parkovací místa
/
Parkovací místo
1
Garáž
/
Podlaží
/
Výhled z nemovitosti
na moře
Energetická třída
/
Počet zobrazení
/
Zobrazení na mapě
  • Město
    ZADAR
  • Region
    ZADARSKA
Informace o kanceláři
Dogma nekretnine d.o.o.
Kontaktovat prodejce
Dogma nekretnine d.o.o.
Vedrana Bašić
+
=