DIKLO (ZADAR) – BYT S4 1. PATRO S VÝHLEDEM NA MOŘE DIKLO (ZADAR) – BYT S4 1. PATRO S VÝHLEDEM NA MOŘE

406.000 €

Vybavení
  • 102 m2
  • 4
  • 2
Lokalita

ZADAR

Popis
DIKLO (ZADAR) – BYT S4 1. PATRO S VÝHLEDEM NA MOŘE

Klidná lokalita poblíž pláže. Všechny byty mají výhled na moře.

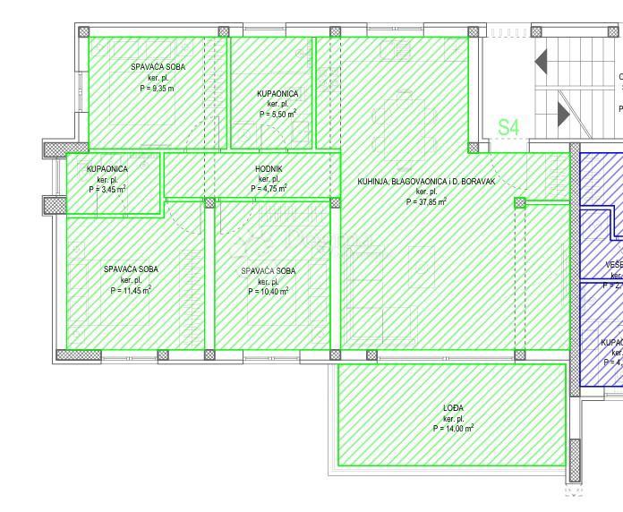
Byt S4 se nachází v prvním patře menšího obytného domu s celkem 6 bytovými jednotkami.

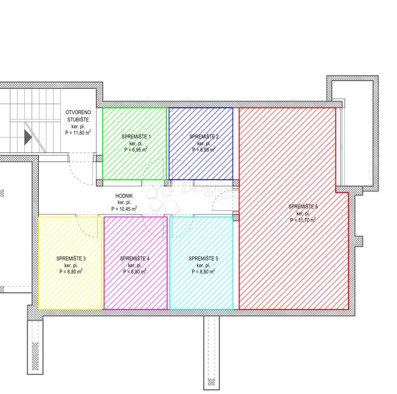
Skládá se z chodby, kuchyně, jídelny a obývacího pokoje, tří ložnic a dvou koupelen. K bytu náleží velká lodžie 14m², sklep 6,95m² a dvě parkovací místa.

Vnitřní obytná plocha: 82,75m². Celková hrubá plocha včetně všech příslušenství: 131,20m², tj. 102,23 čisté prodejní plochy.

Financování dostupné pro občany EU.
Číslo jedna mezi realitními kancelářemi v Chorvatsku již 25 let.

Pro více informací:
Vedrana Bašić +385919077396
E-mail: vedrana.basic@dogma-nekretnine.com
Přehled
  • Typ nemovitosti: Byt
  • Plocha: 102 m2
  • Plocha pozemku: / m2
  • Pokoje: 4 pokoje
  • Koupelny: 2 pokoje
  • Parkovací místa: /
  • Parkovací místo: 1
  • Garáž: /
  • Podlaží: 1
  • Výhled z nemovitosti: na moře
  • Energetická třída: /
  • Počet zobrazení: /
Detaily nemovitosti
Typ nemovitosti
Byt
Plocha
102 m2
Plocha pozemku
/ m2
Pokoje
4 pokoje
Koupelny
2 pokoje
Parkovací místa
/
Parkovací místo
1
Garáž
/
Podlaží
1
Výhled z nemovitosti
na moře
Energetická třída
/
Počet zobrazení
/
Zobrazení na mapě
  • Město
    ZADAR
  • Region
    ZADARSKA
Informace o kanceláři
Dogma nekretnine d.o.o.
Kontaktovat prodejce
Dogma nekretnine d.o.o.
Vedrana Bašić
+
=