Dům Vodice, 219,60m2 Dům Vodice, 219,60m2

490.000 €

Vybavení
  • 219 m2
  • 4
  • 3
Lokalita

VODICE

Popis
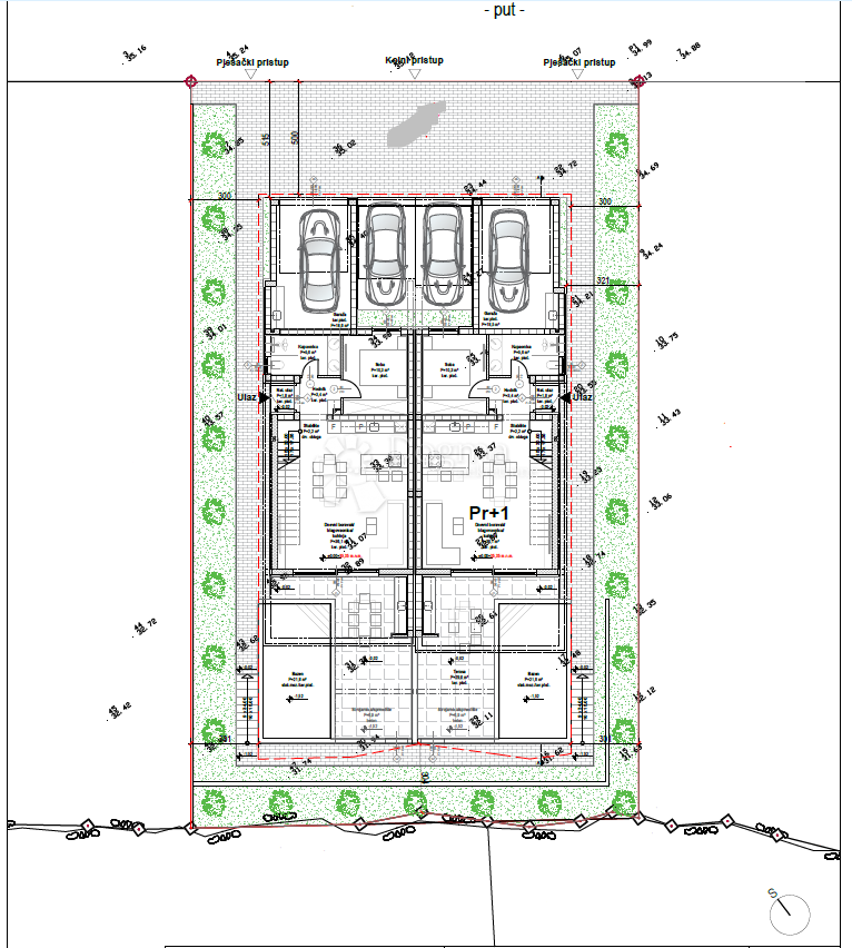
VODICE – Moderní dvoudomek s bazénem ve výstavbě (D-2)

+ PLÁNOVANÉ NASTĚHOVÁNÍ: konec roku 2026 +

Tento moderní dvoudomek, který se právě staví, se nachází v klidné a atraktivní části Vodic – ideální jak pro klidné rodinné bydlení, tak jako luxusní investice pro rekreační účely. Každá jednotka nabízí vysoký standard bydlení, moderní design, funkční dispozici a naprosté soukromí.

Každá polovina domu má rozlohu 219 m² a nachází se na prostorném, upraveném pozemku. Majitelé si budou moci užívat soukromý bazén, garáž a další venkovní parkovací místo pro hosty.

Hlavní vlastnosti

PŘÍZEMÍ:

• Garáž – 18,6 m²
• Vstupní chodba – 3,4 m²
• Koupelna 1 – 5,6 m²
• Ložnice 2 – 10,3 m²
• Obývací pokoj s kuchyní a jídelnou (otevřený prostor) – 36,1 m²
• Terasa – krytá část 12,9 m², nekrytá část 14,1 m²
• Sklad/technická místnost – 6,9 m²

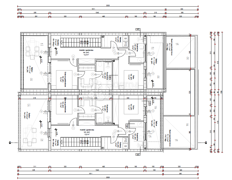
1. PATRO:

• Hlavní ložnice s šatnou a vlastní koupelnou – 21 m²
• Další ložnice s vlastní koupelnou – 17,2 m²
• Prádelna – 4 m²
• Dvě lodžie (přední a zadní část domu) – 11,9 m² a 17,2 m²

Další výhody:

• Kvalitní výstavba a moderní design
• Soukromý bazén a krásně upravený pozemek
• Klidná a příjemná lokalita
• V blízkosti všech potřebných služeb

Tato nemovitost představuje dokonalou kombinaci komfortu, estetiky a praktičnosti v jedné z nejžádanějších oblastí Vodic.

Pro více informací nebo domluvení prohlídky kontaktujte:

Ilija Računica
Mobil/WhatsApp: +385 91 4957 567
Email: ilija.racunica@dogma‑nekretnine.com
Přehled
  • Typ nemovitosti: Dům
  • Plocha: 219 m2
  • Plocha pozemku: 169 m2
  • Pokoje: 4 pokoje
  • Koupelny: 3 pokoje
  • Parkovací místa: /
  • Parkovací místo: 1
  • Garáž: 1
  • Podlaží: /
  • Výhled z nemovitosti: /
  • Energetická třída: /
  • Počet zobrazení: /
Detaily nemovitosti
Typ nemovitosti
Dům
Plocha
219 m2
Plocha pozemku
169 m2
Pokoje
4 pokoje
Koupelny
3 pokoje
Parkovací místa
/
Parkovací místo
1
Garáž
1
Podlaží
/
Výhled z nemovitosti
/
Energetická třída
/
Počet zobrazení
/
Zobrazení na mapě
  • Město
    VODICE
  • Region
    ŠIBENSKO-KNINSKA
Informace o kanceláři
Dogma nekretnine d.o.o.
Kontaktovat prodejce
Dogma nekretnine d.o.o.
Ilija Računica
+
=