KOŽINO – PENTHOUSE S4 2. PATRO, JACUZZI, SOUKROMÝ VÝTAH, VÝH... KOŽINO – PENTHOUSE S4 2. PATRO, JACUZZI, SOUKROMÝ VÝTAH, VÝHLED NA MOŘE

1.040.000 €

Vybavení
  • 176 m2
  • 4
  • 3
Lokalita

KOŽINO , ZADAR

Popis
Pro více informací a prohlídku mě kontaktujte na čísle: +385919077396 nebo e‑mailem vedrana.basic@dogma-nekretnine.com.

KOŽINO – PENTHOUSE S4 2. PATRO, JACUZZI, SOUKROMÝ VÝTAH, VÝHLED NA MOŘE

Byt se nachází v menší obytné budově se čtyřmi byty, přibližně 180 m od moře a pláže.

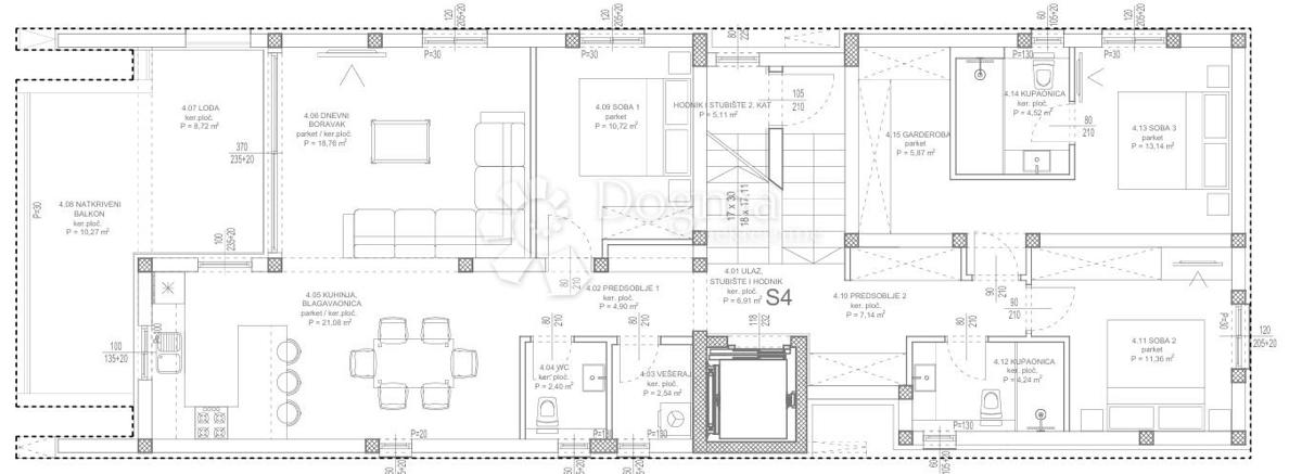
Penthouse S4 se nachází ve 2. patře. Skládá se z: vstupu, schodiště a chodby, předsíně 1, prádelny, WC, kuchyně, jídelny, obývacího pokoje, ložnice 1, předsíně 2, ložnice 2, koupelny, ložnice 3, šatny, schodiště a chodby. Z obývacího pokoje je vstup na terasu o velikosti 8,72 m² a na krytou terasu o velikosti 10,27 m².
Vnitřní obytná plocha činí 113,29 m².
Bytu náleží velká střešní terasa o rozloze 126,57 m² a dvě parkovací místa o celkové ploše 27,50 m². Na střešní terase bude instalováno jacuzzi.

Byt má SVŮJ SOUKROMÝ VÝTAH.

Celková hrubá plocha bytu a příslušenství činí 301,08 m², čistá prodejní plocha je 176,22 m².

VYBAVENÍ:

Konstrukce z kombinace železobetonu a cihel, izolace ETICS 10 cm

Hliníková okna s elektrickými roletami a sítěmi proti hmyzu, trojitá skla

Porcelánové podlahy 60*120 cm (v rané fázi výstavby je možný výběr podlahových krytin)

Elektrické podlahové vytápění v koupelnách, chodbě, kuchyni a obývacím pokoji

Všechny místnosti budou vybaveny klimatizačními jednotkami

Walk‑in sprchy, sanitární zařízení Geberit a Hansgrohe

Městský vodovod, septik s přípravou na připojení ke kanalizaci

Očekávaná energetická třída A+

Předpokládané dokončení: konec roku 2026

Financování dostupné pro občany EU.
Jednička na trhu v Chorvatsku již 25 let.

Pro více informací a prohlídku mě kontaktujte na čísle: +385919077396 nebo e‑mailem vedrana.basic@dogma-nekretnine.com.

KONTAKT:
VEDRANA BAŠIĆ
+385919077396
vedrana.basic@dogma-nekretnine.com
Přehled
  • Typ nemovitosti: Byt
  • Plocha: 176 m2
  • Plocha pozemku: / m2
  • Pokoje: 4 pokoje
  • Koupelny: 3 pokoje
  • Parkovací místa: /
  • Parkovací místo: 1
  • Garáž: /
  • Podlaží: 2
  • Výhled z nemovitosti: /
  • Energetická třída: /
  • Počet zobrazení: /
Detaily nemovitosti
Typ nemovitosti
Byt
Plocha
176 m2
Plocha pozemku
/ m2
Pokoje
4 pokoje
Koupelny
3 pokoje
Parkovací místa
/
Parkovací místo
1
Garáž
/
Podlaží
2
Výhled z nemovitosti
/
Energetická třída
/
Počet zobrazení
/
Zobrazení na mapě
  • Část obce
    ZADAR
  • Město
    KOŽINO
  • Region
    ZADARSKA
Informace o kanceláři
Dogma nekretnine d.o.o.
Kontaktovat prodejce
Dogma nekretnine d.o.o.
Vedrana Bašić
+
=