NOVALJA, JAKIŠNICA - Luxusní apartmán v přízemí NOVALJA, JAKIŠNICA - Luxusní apartmán v přízemí

380.000 €

Vybavení
  • 104 m2
  • 3
  • 2
Lokalita

LUN , NOVALJA

Popis
NOVALJA, JAKIŠNICA - Luxusní byt v přízemí

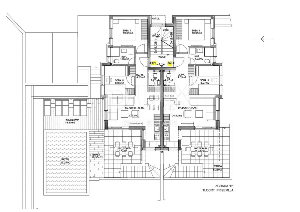
V přízemí nové, moderní budovy s pěti byty se nachází krásný byt se dvěma ložnicemi - perfektní kombinace pohodlí a soukromí. Byt S2 má rozlohu 93,20 m² a skládá se ze dvou ložnic, prostorného obývacího pokoje s kuchyní, koupelny, další toalety a kryté terasy o rozloze 8 m². Soukromá terasa a zahrada, ideální pro relaxaci a užívání si přírody, poskytují zvláštní atmosféru. K bytu náleží také sklep o rozloze 30 m² v suterénu s vlastní koupelnou - ideální pro společenské akce, hosty nebo koníčky. Vytápění je zajištěno klimatizací a podlahovým vytápěním v kuchyni a koupelně a parkety v pokojích poskytují teplo na každém kroku. Klidné prostředí, moderní design a obytný prostor - vše na jednom místě. Celková hrubá plocha 104,11 m2 Vážení potenciální kupující, těší nás, že máte zájem o nemovitosti z naší nabídky. Pro více informací a domluvu prohlídky nemovitosti nás neváhejte kontaktovat. Byt bude hotový do 15. srpna 2025 a připravený k nastěhování. Prohlídka nemovitosti je možná pouze s podpisem realitní smlouvy.

Provize realitní kanceláře je účtována v souladu s Všeobecnými obchodními podmínkami. https://www.dux-nekretnine.hr/opci-uvjeti-poslovanja
Přehled
  • Typ nemovitosti: Byt
  • Plocha: 104 m2
  • Plocha pozemku: / m2
  • Pokoje: 3 pokoje
  • Koupelny: 2 pokoje
  • Parkovací místa: /
  • Parkovací místo: /
  • Garáž: /
  • Podlaží: /
  • Výhled z nemovitosti: /
  • Energetická třída: /
  • Počet zobrazení: /
Detaily nemovitosti
Typ nemovitosti
Byt
Plocha
104 m2
Plocha pozemku
/ m2
Pokoje
3 pokoje
Koupelny
2 pokoje
Parkovací místa
/
Parkovací místo
/
Garáž
/
Podlaží
/
Výhled z nemovitosti
/
Energetická třída
/
Počet zobrazení
/
Zobrazení na mapě
  • Část obce
    NOVALJA
  • Město
    LUN
  • Region
    LIČKO-SENJSKA
Informace o kanceláři
DUX Nekretnine
Kontaktovat prodejce
DUX Nekretnine
Tony Jerković
+
=