ISTRIE, CEROVLJE - Starobylá kamenná budova se zahájenou rek... ISTRIE, CEROVLJE - Starobylá kamenná budova se zahájenou rekonstrukcí

250.000 €

Vybavení
  • 200 m2
  • 5
  • 4
Lokalita

CEROVLJE

Popis
ISTRIE, CEROVLJE - Kamenný dům s probíhající rekonstrukcí

Cerovlje je centrální osada rozlehlé obce stejného jména, která se táhne kopcovitou krajinou severovýchodně od Pazinu a zahrnuje četné osady a několik větších venkovských sídel. Nachází se v nadmořské výšce 278 metrů a zabírá plochu 4,99 km². Tato obec je domovem nejdelší jeskyně na Istrii, olivového háje v nejvyšší nadmořské výšce a dvou hradů, protéká jí řeka Pazinčica a údolím řeky vede železnice, poté silnice a nakonec dálnice. V této krajině pohádkových výhledů je na prodej kamenný dům s probíhající rekonstrukcí. Je ponořen do klidu, míru a kouzla přírody na okraji malebné kamenné vesnice, která vyzařuje klid a tradici, z níž se nabízí panoramatický výhled na malebné sametové kopce. Působivá starožitnost z rakousko-uherské éry se rozkládá na dvou podlažích a vyžaduje rekonstrukci, přičemž rekonstrukcí by mohla vzniknout reprezentativní nemovitost s velkým potenciálem, proto byl vypracován projekt a získáno stavební povolení na rekonstrukci. Projekt je koncipován jako dokonalá směsice tradičního a moderního, která tvarově i barevně zapadá do sídla a krajiny. Adaptace již začala, byla provedena střecha a betonové mezipodlažní konstrukce a uvedená cena se vztahuje k uvedenému stavu. Kombinace bujné zeleně a architektury činí z této nemovitosti ideální volbu pro milovníky kamenných starožitností a přírody s velkým potenciálem pro klidný rodinný život nebo výnosné podnikání v oblasti pronájmu.

Vážení klienti, provize realitní kanceláře je účtována v souladu se Všeobecnými obchodními podmínkami: www.dux-nekretnine.hr/opci-uvjeti-poslovanja
Přehled
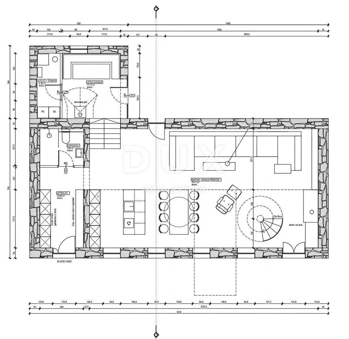
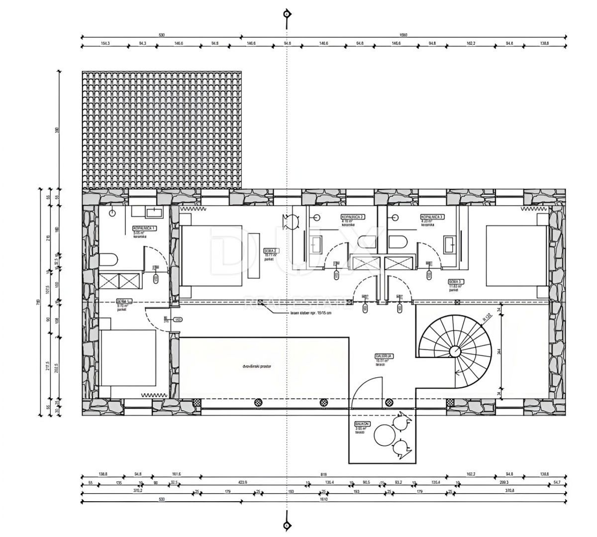
  • Typ nemovitosti: Dům
  • Plocha: 200 m2
  • Plocha pozemku: 749 m2
  • Pokoje: 5 pokoje
  • Koupelny: 4 pokoje
  • Parkovací místa: /
  • Parkovací místo: /
  • Garáž: /
  • Podlaží: /
  • Výhled z nemovitosti: /
  • Energetická třída: /
  • Počet zobrazení: /
Detaily nemovitosti
Typ nemovitosti
Dům
Plocha
200 m2
Plocha pozemku
749 m2
Pokoje
5 pokoje
Koupelny
4 pokoje
Parkovací místa
/
Parkovací místo
/
Garáž
/
Podlaží
/
Výhled z nemovitosti
/
Energetická třída
/
Počet zobrazení
/
Zobrazení na mapě
  • Město
    CEROVLJE
  • Region
    ISTARSKA
Informace o kanceláři
DUX Nekretnine
Kontaktovat prodejce
DUX Nekretnine
Tony Jerković
+
=