Matulji, Jušići - 120 m2 kancelářských prostor k pronájmu Matulji, Jušići - 120 m2 kancelářských prostor k pronájmu

1.150 €

Vybavení
  • 120 m2
  • 4
  • 1
Lokalita

JUŠIĆI , MATULJI

Popis
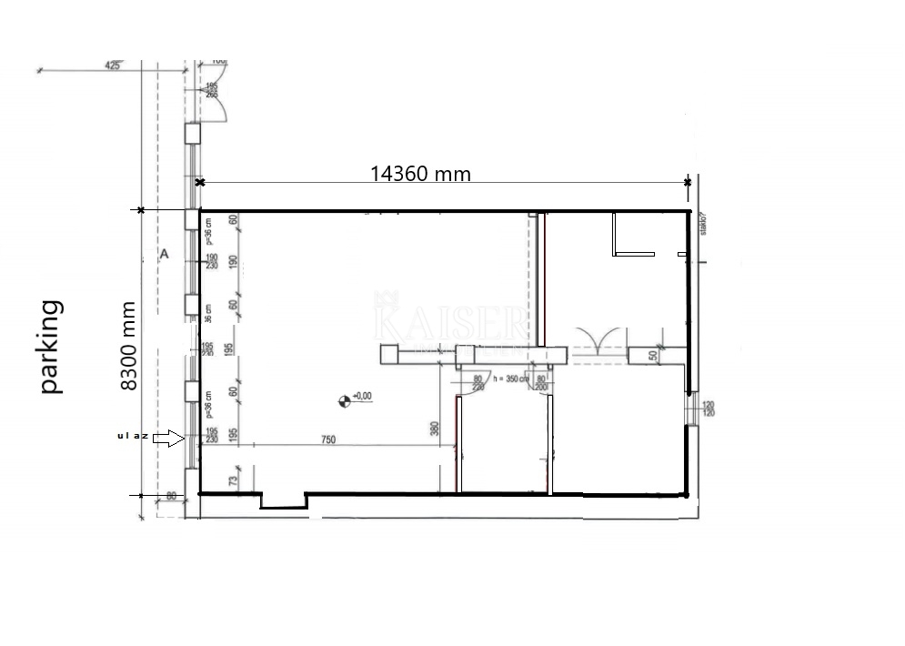
Kaiser Immobilien nabízí k pronájmu obchodní prostory v Jušići, Matulji. Prostor má rozlohu 120 m² a v současné době sestává ze čtyř místností a toalety, kterou lze upravit dle potřeb budoucího nájemníka. Účel prostoru může být různorodý, od obchodních či servisních činností, přes sklady, až po klidná řemesla. Prostor je čistý, světlý a velké okno poskytuje vynikající výhled z vozovky. Umístění prostoru přímo u komunikace zajišťuje snadný přístup a v rámci prostoru jsou k dispozici 2 až 3 parkovací místa, což je další pohodlí pro podnikání. Podmínky pronájmu: Měsíční nájemné činí 1150 € + DPH, kauce ve výši dvou měsíčních nájmů. Provize RK je jeden měsíční nájem. Pro další informace nebo sjednání prohlídky prostor nás neváhejte kontaktovat. Nelica Arsenijević +385919254809 nelica@kaiser-immobilien.hr
Přehled
  • Typ nemovitosti: Komerční prostor
  • Plocha: 120 m2
  • Plocha pozemku: / m2
  • Pokoje: 4 pokoje
  • Koupelny: 1 pokoje
  • Parkovací místa: /
  • Parkovací místo: /
  • Garáž: /
  • Podlaží: /
  • Výhled z nemovitosti: /
  • Energetická třída: /
  • Počet zobrazení: /
Detaily nemovitosti
Typ nemovitosti
Komerční prostor
Plocha
120 m2
Plocha pozemku
/ m2
Pokoje
4 pokoje
Koupelny
1 pokoje
Parkovací místa
/
Parkovací místo
/
Garáž
/
Podlaží
/
Výhled z nemovitosti
/
Energetická třída
/
Počet zobrazení
/
Zobrazení na mapě
  • Část obce
    MATULJI
  • Město
    JUŠIĆI
  • Region
    PRIMORSKO-GORANSKA
Informace o kanceláři
Kaiser Immobilien
Kontaktovat prodejce
+
=