Sabunike - atraktivní byt v blízkosti moře Sabunike - atraktivní byt v blízkosti moře

270.000 €

Vybavení
  • 91 m2
  • 3
  • 2
Lokalita

SABUNIKE , PRIVLAKA

Popis
Kaiser Immobilien představuje: Luxusní apartmán v Sabunike u Zadaru

Vzdálenost od moře: 600 metrů

Popis nemovitosti:
Prodává se apartmán v prvním patře dvoupatrové budovy, která se nachází v klidném přírodním prostředí v osadě Sabunike s krásným výhledem na moře. Tento apartmán nabízí perfektní rovnováhu mezi soukromím a blízkostí veškerého potřebného vybavení.
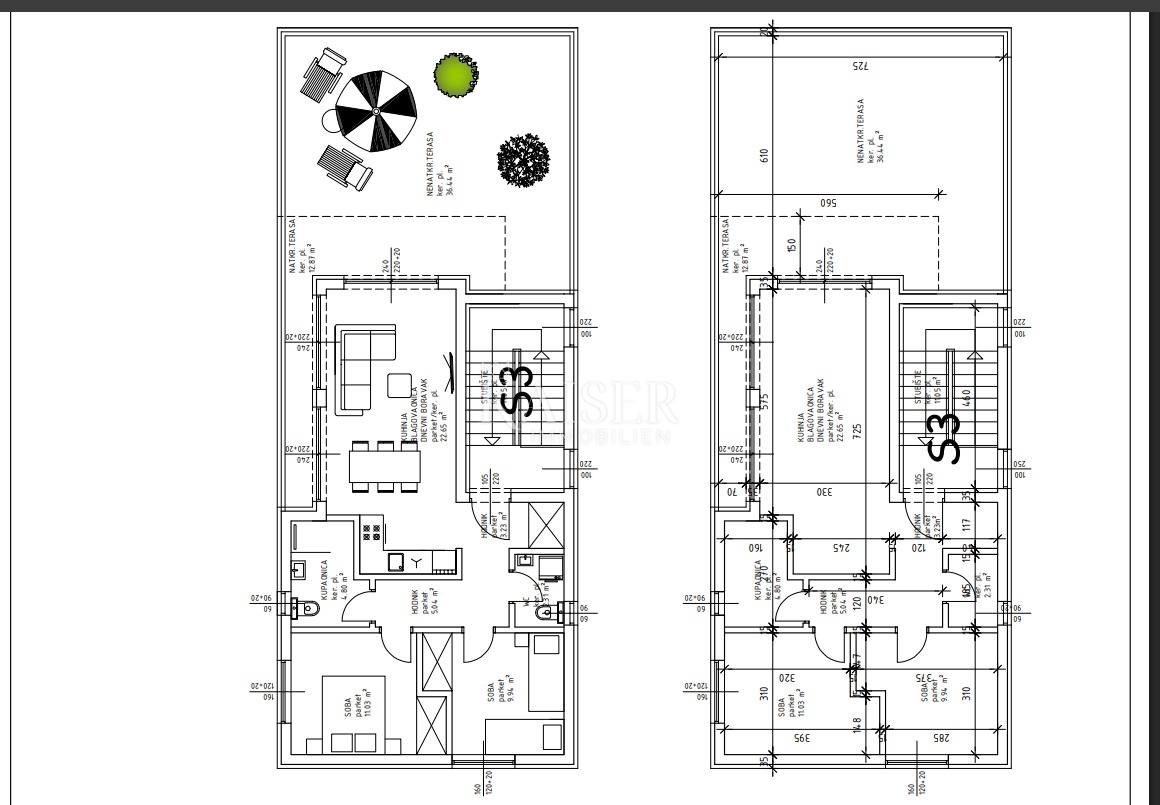
Apartmán se skládá z prostorného obývacího pokoje s kuchyní a jídelnou, dvou ložnic, koupelny, samostatné toalety a chodby. Apartmán je vybaven podlahovým vytápěním ve všech místnostech kromě ložnic a další komfort po celý rok zajišťuje klimatizace. Budova má 8 cm silnou fasádní tepelnou izolaci, která přispívá k lepší energetické účinnosti a příjemné teplotě v bytě po celý rok.

Zvláštní výhodou apartmánu jsou velké terasy, kryté i nekryté, o celkové ploše 49,31 m², které poskytují další prostor pro relaxaci a venkovní bydlení.
Celková plocha bytu s terasami je 91,52 m². Fotografie zobrazují dokončený byt s identickou konstrukcí a pokoji a slouží k lepší představě o tom, jak bude byt vypadat. Nastěhování je možné k 01.05.2026. S

Vybavení místnosti:
-Chodba: 3,23 m²
-WC: 2,31 m²
-Kuchyň + jídelna + obývací pokoj: 22,65 m²
-Chodba: 5,04 m²
-Ložnice: 11,03 m²
-Ložnice: 9,94 m²
-Koupelna: 4,80 m²
-Krytá terasa: 12,87 m²
-Nekrytá terasa: 36,44 m²
-Celkem (vypočteno): 74,54 m²
-Úložný prostor: 5,93 m²
-Schodiště: 11,05 m²
-Celkem: 91,52 m²

Další vybavení:
- Klimatizace, vytápění a chlazení v každé místnosti
- Podlahové vytápění
- Dvě parkovací místa

Tento byt je ideální pro ty, kteří hledají klid a pohodlí v Bezprostřední blízkost moře. Využijte této jedinečné příležitosti a staňte se majitelem krásného luxusního apartmánu s výhledem na moře. Sabunike jsou součástí osady Privlaka, 10 km od Zadaru, známé pro svou dlouhou písečnou pláž, léčivé bahno, nejznámější místo pro surfování a oblíbené místo dobrodruhů hledajících adrenalin, protože díky větru vanoucímu z Velebitu nabízí zážitek ze surfování, windsurfingu nebo létání na závěsném kluzáku. Procházkou po vyhlídce si můžete vychutnat výhled na moře a pohoří Velebit. Sabunike nabízí klid a soukromí v bezprostřední blízkosti všech potřebných služeb pro život. Blízkost Zadaru (18 km) a dobré silniční spojení z něj činí ideální kombinaci klidu a městského života.

Pro další informace a pro domluvení prohlídky bytu nás kontaktujte na čísle 00385992510230 nebo na e-mailu marijana.papic@kaiser-immobilien.hr.
Provize agentury pro kupujícího činí 3 % + DPH a je vyplácena v případě koupě nemovitosti, při uzavření první právní listiny.
Přehled
  • Typ nemovitosti: Byt
  • Plocha: 91 m2
  • Plocha pozemku: / m2
  • Pokoje: 3 pokoje
  • Koupelny: 2 pokoje
  • Parkovací místa: /
  • Parkovací místo: /
  • Garáž: /
  • Podlaží: 2
  • Výhled z nemovitosti: na moře
  • Energetická třída: 1
  • Počet zobrazení: /
Detaily nemovitosti
Typ nemovitosti
Byt
Plocha
91 m2
Plocha pozemku
/ m2
Pokoje
3 pokoje
Koupelny
2 pokoje
Parkovací místa
/
Parkovací místo
/
Garáž
/
Podlaží
2
Výhled z nemovitosti
na moře
Energetická třída
1
Počet zobrazení
/
Zobrazení na mapě
  • Část obce
    PRIVLAKA
  • Město
    SABUNIKE
  • Region
    ZADARSKA
Informace o kanceláři
Kaiser Immobilien
Kontaktovat prodejce
+
=

Podobné nemovitosti