MODERNÍ DŮM VE VÝSTAVBĚ MODERNÍ DŮM VE VÝSTAVBĚ

0 €

Vybavení
  • 203 m2
  • 8
  • 4
Lokalita

SVETI PETAR U ŠUMI

Popis
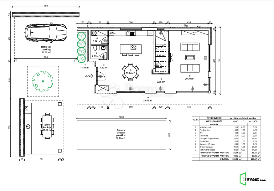
Mezi Pazinem a Žminjem je na prodej nová budova o celkové ploše 203,32 m², která se nachází na pozemku o rozloze 887 m².

Dům se skládá z přízemí a prvního patra.
Přízemí je řešeno jako hlavní, obytná část domu s prostorným designem, kde je umístěna kuchyně, jídelna a obývací pokoj se vstupem na terasu a bazén.
V přízemí se dále nachází komora a menší toaleta pro hosty, která poskytuje více soukromí pro hosty i nájemníky.
V 1. patře jsou 3 ložnice, každá s vlastní koupelnou, z toho jedna hlavní o rozloze 21 m² a koupelna 9,88 m².
Z každého pokoje je vstup na terasu 37,37 m² s nerušeným výhledem do okolí.

Zábavu s vaší firmou nebo rodinou zakončíte u bazénu o velikosti 32 m² s grilem v letní kuchyni o rozloze 25,83 m².
K domu náleží také kryté parkovací stání 35,35 m².
Pro zajištění neuvěřitelného komfortu bude mít tento dům podlahové vytápění, které zajistí komfortní a rovnoměrné teplo v každém rohu domu.

Tato vícepodlažní budova je ideálním místem pro ty, kteří hledají klidný a pohodlný domov obklopeni přírodou a poskytuje ideální útočiště k útěku před shonem města. Vzhledem ke své moderní estetice, poloze a krásnému okolí, tato nemovitost vám poskytne pohodlný a kvalitní životní styl.

Prodávající ponechává možnost koupě v průběhu stavby, cena se odvíjí od stupně stavby v době koupě.
Vlastnictví je čisté 1/1.
Stavba byla zahájena v lednu 2024.

Přehled
  • Typ nemovitosti: Dům
  • Plocha: 203 m2
  • Plocha pozemku: 861 m2
  • Pokoje: 8 pokoje
  • Koupelny: 4 pokoje
  • Parkovací místa: /
  • Parkovací místo: 1
  • Garáž: /
  • Podlaží: /
  • Výhled z nemovitosti: /
  • Energetická třída: 1
  • Počet zobrazení: /
Detaily nemovitosti
Typ nemovitosti
Dům
Plocha
203 m2
Plocha pozemku
861 m2
Pokoje
8 pokoje
Koupelny
4 pokoje
Parkovací místa
/
Parkovací místo
1
Garáž
/
Podlaží
/
Výhled z nemovitosti
/
Energetická třída
1
Počet zobrazení
/
Zobrazení na mapě
  • Město
    SVETI PETAR U ŠUMI
  • Region
    ISTARSKA
Informace o kanceláři
Dogma nekretnine d.o.o.
Kontaktovat prodejce
Dogma nekretnine d.o.o.
Gianna Brženda - DOGMA PULA
+
=