LABIN, SVETA MARINA - starý dům se stavebním pozemkem 935m2,... LABIN, SVETA MARINA - starý dům se stavebním pozemkem 935m2, výhledem na moře a 2 koncepčními projekty

310.000 €

Vybavení
  • 50 m2
  • 1
Lokalita

SVETA MARINA , RAŠA

Popis
LABIN, SVETA MARINA- starý dům se stavebním pozemkem 935m2, výhled na moře a 2 koncepční projekty


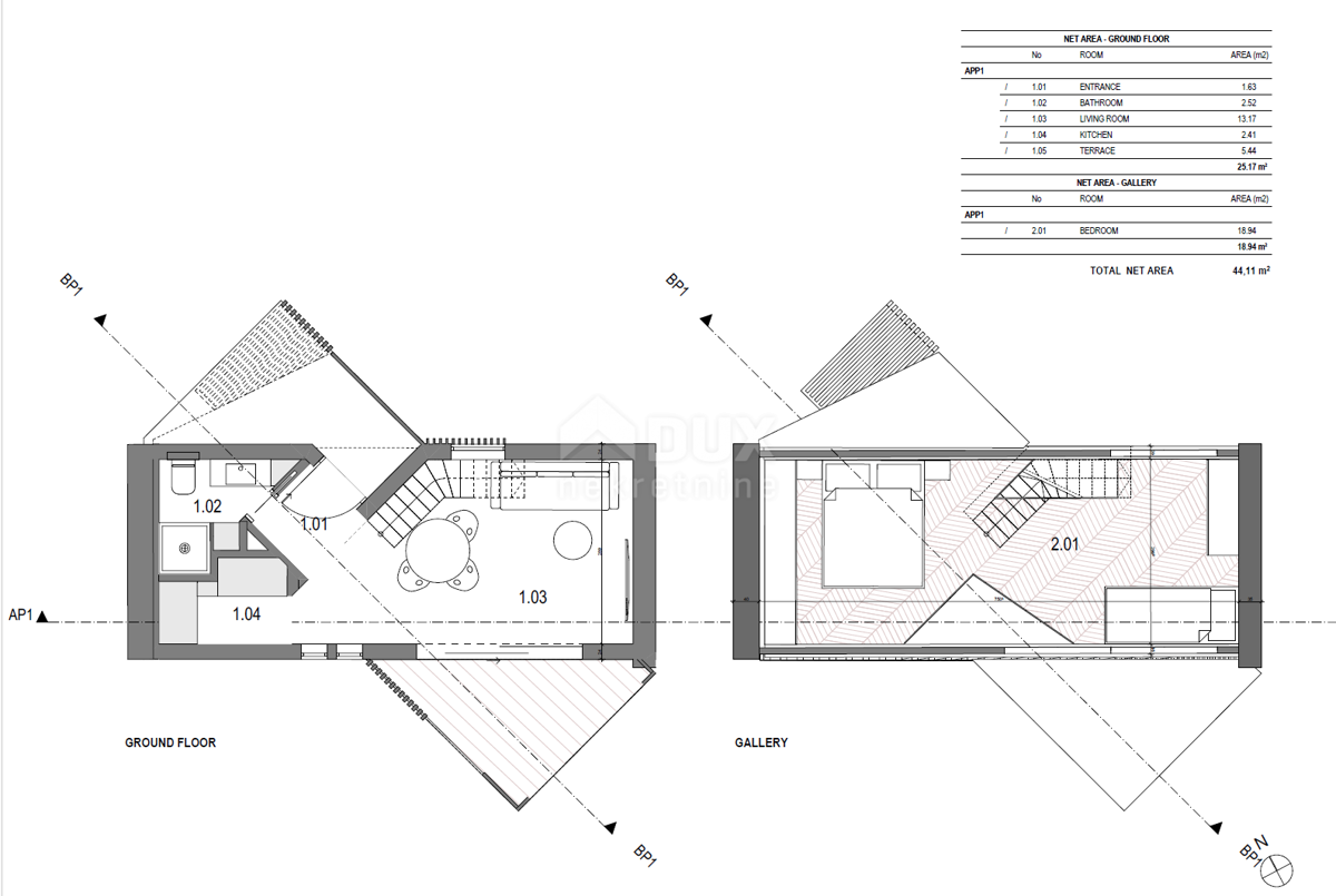
Stavební pozemek má výhled na moře a jižní orientaci. Stavební pozemek v přírodě a dle ideového návrhu se skládá ze 2 částí: - část cca 435m2 se starým domem, na kterém je plánována rekonstrukce - přístavba stávajícího domu s ideovým projektem vily s bazénem Pro této části 435m2 je nutné od Magistrátu dokoupit dalších 107m2, za které je možnost odkupu. Ta část by pak měla celkem 542 m2, což stačí na realizaci koncepčního projektu. - část cca 500m2, na které je dle koncepčního projektu plánován objekt se 3 byty, konfigurace terénu je mírně svažitý/zcela rovinatý. Pole se nachází v klidné a tiché poloze a přímo u zpevněné cesty. Veškeré inženýrské sítě na pole. Čistý a uklizený majetek. Pozemek je částečně vyklizený a připravený k výstavbě. Budoucí nemovitost na tomto pozemku by měla výhled na moře i z přízemí, ale z prvního patra by byl panoramatický otevřený výhled na moře. Tato nemovitost je 390 m od moře vzdušnou čarou nebo 700 m autem (cca 1 min.). Dobrá příležitost pro investory, kteří se zabývají výstavbou bytů/domů k pronájmu - dovolená s bazénem, ale i pro ty, kteří by si rádi postavili rodinný dům v klidném, tichém prostředí. NEMOVITOST VE SKVĚLÉ A JEDINEČNÉ LOKALitě S VELKÝM POTENCIÁLEM!!! LABIN Město Labin bylo založeno na 320 metrů vysokém kopci - na místě římského osídlení Albona, jehož jméno bylo poprvé zmíněno v roce 285 našeho letopočtu. V minulosti byl tento klenot známý svou 400 let starou důlní činností, dnes je jedním z kulturních a správních center na Istrii. Půvabné město spojuje kulturní a historické památky a bohatou architekturu při různých kulturních akcích. Staré Město se nachází na kopci, zatímco druhá část města je známá jako Podlabin. Oblast Starého Města je známá jako město umělců, kde jsou četná studia, která můžete vidět, když se projdete jejich uličkami. Kromě toho můžete navštívit Městské muzeum s jeho archeologickou a etnologickou sbírkou a zažít jedinečný a nezapomenutelný zážitek ze vstupu do modelového dolu. Pouhých 5 kilometrů od Labinu je Rabac - nejvýznamnější turistické centrum na východním pobřeží Istrie, které se nachází na úpatí kopce, který ji chrání, a těší se příjemnému středomořskému klimatu. Zdobí ho nádherné okolí, krásné oblázkové pláže a výhled na Kvarnerský záliv. Postupem času se proměnil ve známé turistické centrum s až 15 hotely a apartmánovými komplexy a několika kempy. Pokud rádi nakouknete do neobvyklé gastronomické nabídky, nezapomeňte ochutnat specialitu specifickou pro oblast Labinština. Sladké vařené donuty - sladké těsto se sýrem v podobě raviol v neobvyklé kombinaci s gulášem jistě představuje nový zážitek. Vážení klienti, provize RK je účtována v souladu se Všeobecnými obchodními podmínkami: www.dux-nekretnine.hr/opci-uvjeti-poslovanja Vážení potenciální kupující, nájemci a nájemci při prohlídce nemovitosti, o kterou máte zájem. o kterou máte zájem, je možné pouze a výhradně s podpisem Smlouvy o zprostředkování nemovitosti, a to za účelem ochrany vlastníka nemovitosti před návštěvami neregistrovaných osob a v souladu se zákonem o ochraně osobních údajů a zákonem o zprostředkování nemovitostí. . Při prohlídce každé nemovitosti je potenciální kupující/nájemce/nájemce povinen vyplnit a podepsat Smlouvu o zprostředkování nemovitosti, ve které je uvedeno: - základní údaje o potenciálním kupujícím/nájemci/nájemci - základní údaje o RK - částka provize RK Provize RK pro kupujícího činí 3 % (+25 % DPH) z celkové sjednané kupní ceny. Provize RK pro nájemce je jeden měsíční nájem (+ 25% DPH).







Přehled
  • Typ nemovitosti: Dům
  • Plocha: 50 m2
  • Plocha pozemku: 935 m2
  • Pokoje: 1 pokoje
  • Koupelny: / pokoje
  • Parkovací místa: /
  • Parkovací místo: /
  • Garáž: /
  • Podlaží: /
  • Výhled z nemovitosti: na moře
  • Energetická třída: /
  • Počet zobrazení: /
Detaily nemovitosti
Typ nemovitosti
Dům
Plocha
50 m2
Plocha pozemku
935 m2
Pokoje
1 pokoje
Koupelny
/ pokoje
Parkovací místa
/
Parkovací místo
/
Garáž
/
Podlaží
/
Výhled z nemovitosti
na moře
Energetická třída
/
Počet zobrazení
/
Zobrazení na mapě
  • Část obce
    RAŠA
  • Město
    SVETA MARINA
  • Region
    ISTARSKA
Informace o kanceláři
DUX Nekretnine