ŠIBENIK, VODICE – Luxusní byt v novostavbě S6 ŠIBENIK, VODICE – Luxusní byt v novostavbě S6

658.710 €

Vybavení
  • 159 m2
  • 4
  • 3
Lokalita

VODICE

Popis
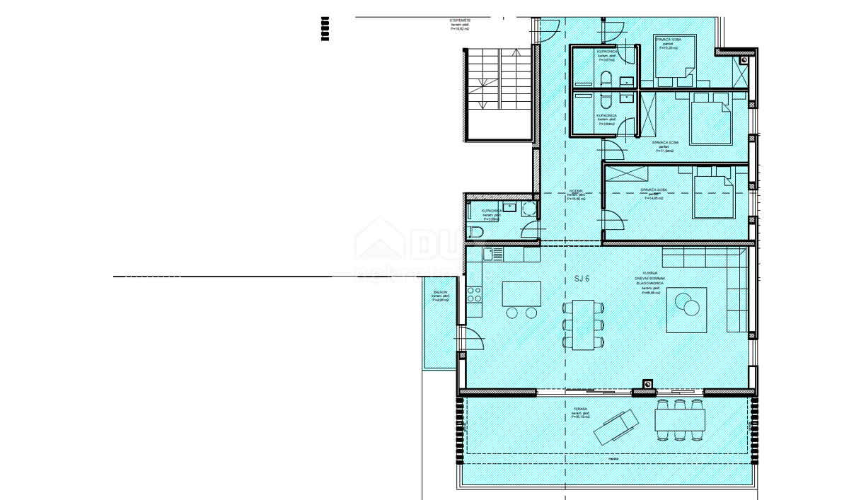
ŠIBENIK, VODICE – Luxusní byt v novostavbě S6.

Krásný byt 137,38 m2 s terasou 20 m2 je na prodej ve Vodicích u Šibeniku. Celková užitná hodnota plochy bytu včetně veškerého příslušenství je 162,85m2. Nachází se v přízemí obytného domu s 10 apartmány, který se nachází pouhých 80 metrů od hlavní pláže. V okruhu pouhých 80 metrů se nachází kino a park a pouhých 200 metrů odtud je centrum města, které nabízí řadu zařízení a rekreačních příležitostí. Byt se skládá z chodby, kuchyně propojené s jídelnou a obývacího pokoje, které dohromady vytvářejí funkční prostor pro stravování a společenské vyžití. Byt obsahuje ložnici s en-suite koupelnou, která zvyšuje soukromí, další koupelnu a toaletu a další dvě ložnice. Zvláštností bytu je terasa, která poskytuje prostor pro venkovní relaxaci a nabízí možnost instalace jacuzzi nebo i menšího bazénu, čímž vznikne privátní koutek pro požitek a relaxaci. U terasy je zahrada, dále obohacující prostor o přírodní zeleň. Byt je vybaven podlahovým vytápěním, které zajišťuje teplo v každém rohu, přičemž všechny pokoje jsou vybaveny klimatizací pro optimální ovládání klimatu. Budova je opláštěna tepelným pláštěm z EPS o tloušťce 10 cm, který zaručuje komfortní teplotu po všechna roční období a dosahuje vysoké energetické účinnosti. Při výstavbě byly použity extrémně kvalitní materiály zajišťující nejen odolnost, ale i estetickou přitažlivost prostoru, který vydrží mnoho let. Tento byt se prodává nezařízený, což dává budoucím majitelům svobodu personalizovat si prostor dle vlastních preferencí. Dále je zde možnost dokoupení garážového stání a úložného prostoru v přízemí, zajišťující praktičnost a bezpečný prostor pro parkování a uložení osobních věcí. Nedaleko se nachází ostrůvek Prvić a do centra města Šibenik je to 12 km. Město Split je vzdálené 69 km a nejbližší letiště je 49 km daleko. V oblasti se nachází několik národních parků a přírodních parků. Národní park Kornati, známý také jako perla Jadranu, se nachází v bezprostřední blízkosti Šibeniku. O něco severněji se nachází přírodní park Vranské jezero, přírodní ornitologická rezervace s bohatou flórou a faunou.

Vážení klienti, zprostředkovatelská provize je účtována v souladu se Všeobecnými obchodními podmínkami www.dux-nekretnine.hr/opci-uvjeti-poslovanja.

Přehled
  • Typ nemovitosti: Byt
  • Plocha: 159 m2
  • Plocha pozemku: / m2
  • Pokoje: 4 pokoje
  • Koupelny: 3 pokoje
  • Parkovací místa: /
  • Parkovací místo: /
  • Garáž: 1
  • Podlaží: 1
  • Výhled z nemovitosti: /
  • Energetická třída: /
  • Počet zobrazení: /
Detaily nemovitosti
Typ nemovitosti
Byt
Plocha
159 m2
Plocha pozemku
/ m2
Pokoje
4 pokoje
Koupelny
3 pokoje
Parkovací místa
/
Parkovací místo
/
Garáž
1
Podlaží
1
Výhled z nemovitosti
/
Energetická třída
/
Počet zobrazení
/
Zobrazení na mapě
  • Město
    VODICE
  • Region
    ŠIBENSKO-KNINSKA
Informace o kanceláři
DUX Nekretnine
Kontaktovat prodejce
DUX Nekretnine
Tony Jerković
+
=